DzŚ 0007
The Screen
Opis projektu
Klimat w domu jest pogodny, czysty i skoncentrowany na spokoju wiejskiego krajobrazu. Rozległe, łagodnie nachylone pola, kilka drzew, samotny dom. Można się w niego wpatrywać godzinami. Miłe miejsce, do którego można wrócić do domu po pracowitym dniu pełnym wrażeń.
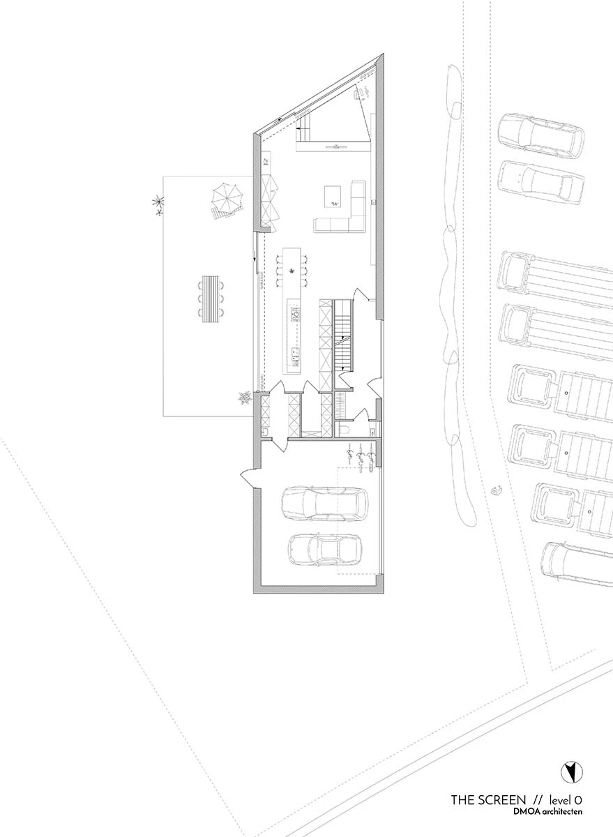
Piękna działka z niekończącymi się widokami. Ale niestety w sąsiedztwie firmy transportowej. Jak maksymalnie wykorzystać te dwa sprzeczne wpływy? Nasza koncepcja: po prawej stronie działki umieściliśmy wąski, długi i wysoki dom. Sama posesja działa jak parawan, zasłaniając nieestetycznego, hałaśliwego sąsiada z prawej strony. Prawa strona domu ma ślepą fasadę, natomiast druga otwiera się swobodnie na duży, słoneczny ogród.
Głowa podłużnej bryły zawiera garaż i jest zamknięta od strony ulicy. Powyżej znajdują się pokoje dziecięce, w których kubatura została przesunięta w lewo i posiada duże okno. Dzięki temu dzieci mogą podziwiać widoki ze swoich łóżek. Dodatkową zaletą jest to, że elewacja frontowa zyskuje na dynamice. Tylna część kubatury jest ścięta pod kątem i całkowicie przeszklona. W ten sposób pokój dzienny w maksymalnym stopniu korzysta z najlepszej części panoramy. Kształt domu, który w naturalny sposób wynika z warunków, jest mocny w swojej prostocie.
Okna są duże i wstawione świadomie, jak gigantyczne drewniane płótna, które obramowują krajobraz. Przyczyniają się one do czystości kształtu. I nic nie jest w stanie jej zakłócić. Drzwi do ogrodu wyłożone są cegłą, okno toalety włączone jest w większą całość.
Wszystkie duże okna są od zewnątrz wyposażone w ekrany z poziomymi listwami. Słońce i prywatność są stale filtrowane zgodnie z życzeniem mieszkańców. Żywa cegła nadaje całości fakturę i charakter. W przeciwnym razie ogólny wygląd stałby się zbyt pstrokaty.
Wnętrze kontynuuje czystość formy i materiału. Liczba materiałów jest ograniczona. Punktem wyjścia były nieotynkowane ściany z płyt betonowych. Fornir drewniany o podobnej fakturze i kolorze harmonijnie do siebie pasuje. Biała wylewana podłoga i otynkowany na biało sufit sprawiają, że beton i fornir są jeszcze mocniej wyeksponowane.
Kuchnia uzupełnia tę paletę kolorów dzięki blatowi z odlewanego na miejscu betonu i białym szafkom z kamienia sztucznego. W sypialniach atmosferę ociepla drewniany parkiet.
Źródło:
brickarchitecture.com
Galeria
Udostępnij:
Produkty pasujące
81 Ligure
Autorzy
DMOA architects
www.dmoa.beLokalizacja architekta
Belgia
Jeżeli spodobał ci się ten projekt i chcesz nawiązać kontakt z jego twórcą, wypełnij formularz.