DzC 0041
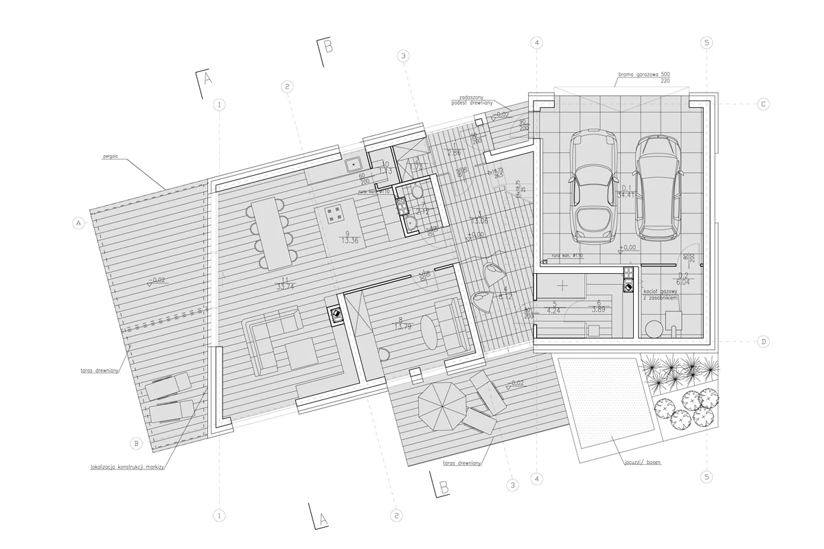
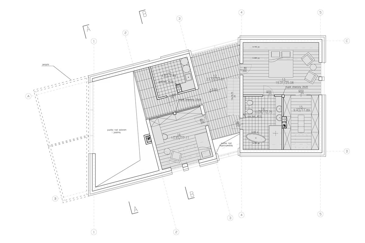
Dom jednorodzinny w Gdyni
Galeria
Udostępnij:
Inne projekty tego architekta
Produkty pasujące
75 Quartis
Autorzy
Ziółkowska Studio Autorska Pracownia Architektury mgr inż. arch. Paulina Ziółkowska
www.ziolkowskastudio.plLokalizacja architekta
pomorskie
Jeżeli spodobał ci się ten projekt i chcesz nawiązać kontakt z jego twórcą, wypełnij formularz.