DzC 0051
Mieszkalna Stodoła Dolnośląska
Opis projektu
Wsie województwa dolnośląskiego pełne są architektonicznych pozostałości po latach przedwojennych. Najbardziej charakterystyczne jest ceglane budownictwo zabudowań gospodarczych. Stodoły, stajnie, obory dzięki swojej często znacznej kubaturze niosą ogromne możliwości rewitalizacji, przywracania dolnośląskim wsiom ich dawnego charakteru ich adaptacja na potrzeby mieszkaniowe może stanowić ciekawy, specyficzny dla regionu element krajobrazu. Widząc kolejną rozpadającą się stodołę w jednej z podwrocławskich wsi wpadliśmy na pomysł, żeby spróbować sił w stworzeniu koncepcji rewitalizacji lub systemu stylizacji nowych budynków zgodnie z przedwojennymi zasadami estetyki. Połączenie starego stylu, ceglanego detalu z nowoczesnymi rozwiązaniami i materiałami naszym zdaniem może wprowadzić nową jakość w budownictwie podmiejskim, być może uratuje również wiele budynków od zniszczenia.
Projektowana rozbudowa z przebudową zakłada wykorzystanie istniejącego budynku inwentarskiego (stodoła). Budynek parterowy, niepodpiwniczony składający się z dwóch części – starszej, jednoprzestrzennej i nowszej dobudowanej zachowując gabaryt, z antresolą. Część starsza budynku została najprawdopodobniej wybudowana około roku 1910, część nowsza przeznaczona na stajnię i chlewnię została dobudowana najprawdopodobniej w okresie 1920-1939. Stan techniczny zabudowy został przez uprawnionych projektantów uznany za dobry, nadający się do przebudowy i dalszej eksploatacji po zmianie funkcji. Projekt przebudowy zakłada generalny remont budynku, modernizację izolacji termicznych i przeciwwilgociowych wraz z przystosowaniem go do nowej funkcji.
Rozbudowa ogranicza się do dobudowania trzech elementów bezpośrednio związanych ze zwiększeniem funkcjonalności budynku tj. dwóch wiatrołapów od strony ul. Brodzkiej oraz sypialni od ogrodu. Dobudowane elementy zdaniem projektanta nie zakłócają charakteru przedwojennej zabudowy, utrzymują tradycyjny styl łącząc go z nowoczesną formą dobudowanych elementów.
Układ połaci dachowych dwu-spadowy, w tradycyjnej konstrukcji drewnianej (jętkowy). Budynek zalicza się do budynków niskich, wysokość do kalenicy 7,01m. Kolorystyka elewacji: ciepłe barwy, jasne odcienie brązu, cegła klinkierowa. Dachówka ceramiczna karpiówka, czerwona klasyczna.
Rozwiązania architektoniczno-funkcjonalne
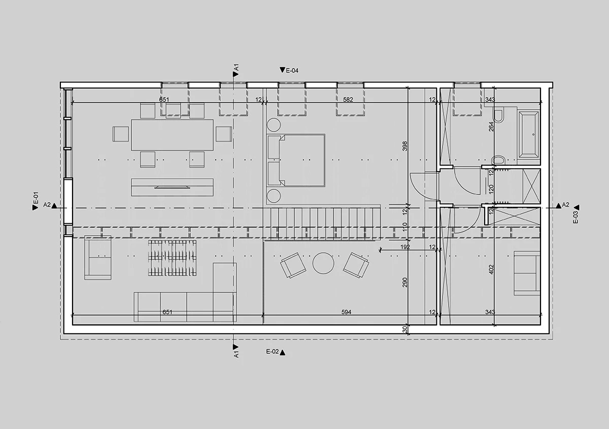
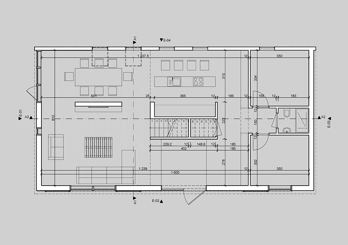
Budynek parterowy z użytkowym poddaszem, niepodpiwniczony. Bryła prosta, dach dwuspadowy, kąt nachylenia połaci ok. 40 stopni. Koncepcja zakłada otwarty układ wnętrza, wysoki salon i jadalnia, otwarta kuchnia, na parterze wydzielone pomieszczenie techniczne (kotłownia), toaleta oraz niewielki gabinet/pracownia. Na piętrze otwarta sypialnia oraz biblioteka z czytelnią, dodatkowe wydzielone dwa pokoje oraz główna łazienka.
Technologia wykonania
Przedstawiona koncepcja to nowy budynek niskoenergetyczny (zapotrzebowanie na ciepło - 30 do 60 kWh/ (m²•rok)). Budynek wykonany w technologii drewnianej – szkieletowej lub stalowej szkieletowej z dużym uwzględnieniem ekologii zastosowanych materiałów i wykorzystania elementów z odzysku. Zastosowane materiały zewnętrze: cegła z odzysku, dachówka karpiówka z odzysku, blacha tytanowo – cynkowa.
Podstawowe wymiary i powierzchnie:
powierzchnia zabudowy – 128m2
powierzchnia użytkowa – 180m2
wymiary zewnętrze – 8x16m
wysokość gzymsu – 350cm
wysokość kalenicy – 750cm
Galeria
Udostępnij:
Inne projekty tego architekta
Produkty pasujące
2 Heidebloem
Autorzy
2arch wytwórnia projektów
www.2arch.pl/Lokalizacja architekta
dolnośląskie
Jeżeli spodobał ci się ten projekt i chcesz nawiązać kontakt z jego twórcą, wypełnij formularz.