DzC 0099
Dom nad jeziorem
Opis projektu
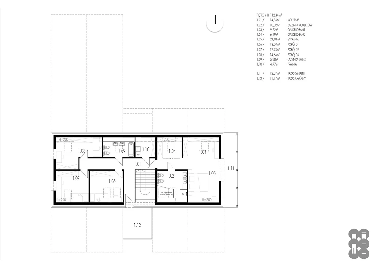
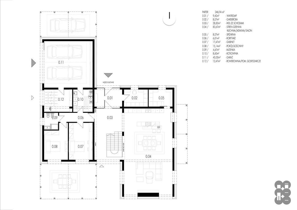
Dom jednorodzinny o powierzchni użytkowej 384m2. Inwestycja w trakcie realizacji.
Galeria
Udostępnij:
Inne projekty tego architekta
Produkty pasujące
Wiesmoor kohle biała
Autorzy
NA NO WO architekci
www.nanowoarchitekci.pl/Lokalizacja architekta
dolnośląskie
Jeżeli spodobał ci się ten projekt i chcesz nawiązać kontakt z jego twórcą, wypełnij formularz.