DzC 0142
Dom T
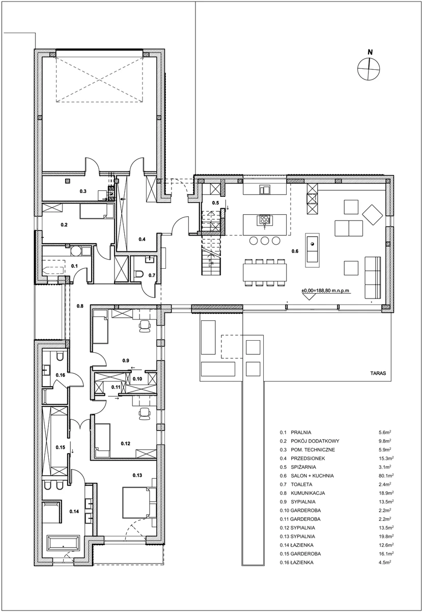
Opis projektu
Dom T zaprojektowany został dla czteroosobowej rodziny.
Wejście główne do budynku znajduje się od północy. Na osi wejścia zaprojektowane zostało duże okno wychodzące na taras, po prawej stronie znajduje się wygodna garderoba połączona z przedsionkiem, po lewej stronie znajduje się strefa wspólna kuchnia z jadalnią oraz salonem, idąc prosto i mijając po prawej toaletę dla gości przechodzimy do części prywatnej domu.
Dom dzieli się na dwie bryły: ceglaną o dwuspadowym dachu, w której znajdują się przestrzenie wspólne (kuchnia, jadalnia, wypoczynek, salon) oraz jasną, parterową z płaskim dachem, mieszczącą przestrzenie prywatne oraz techniczne (sypialnie i garaż). Takie ułożenie brył pozwoliło na osłonięcie tarasu i widnego, intensywnie przeszklonego salonu. Otworzenie wnętrza domu na taras i niebo było jednym z życzeń klientów, żeby to osiągnąć zastosowaliśmy wysokie okna połączone z oknami dachowymi. Innym marzeniem właścicieli był wolnostojący dwustronny kominek, który został umieszony w samym środku przestrzeni, oddzielając salon od jadalni. Kuchnia zamknięta jest od góry antresolą.
Powierzchnia użytkowa: 255 m2
Galeria
Udostępnij:
Inne projekty tego architekta
Produkty pasujące
583 Touraine
Autorzy
Koziej Architekci
www.koziejarchitekci.comLokalizacja architekta
łódzkie
Jeżeli spodobał ci się ten projekt i chcesz nawiązać kontakt z jego twórcą, wypełnij formularz.