DzC 0287
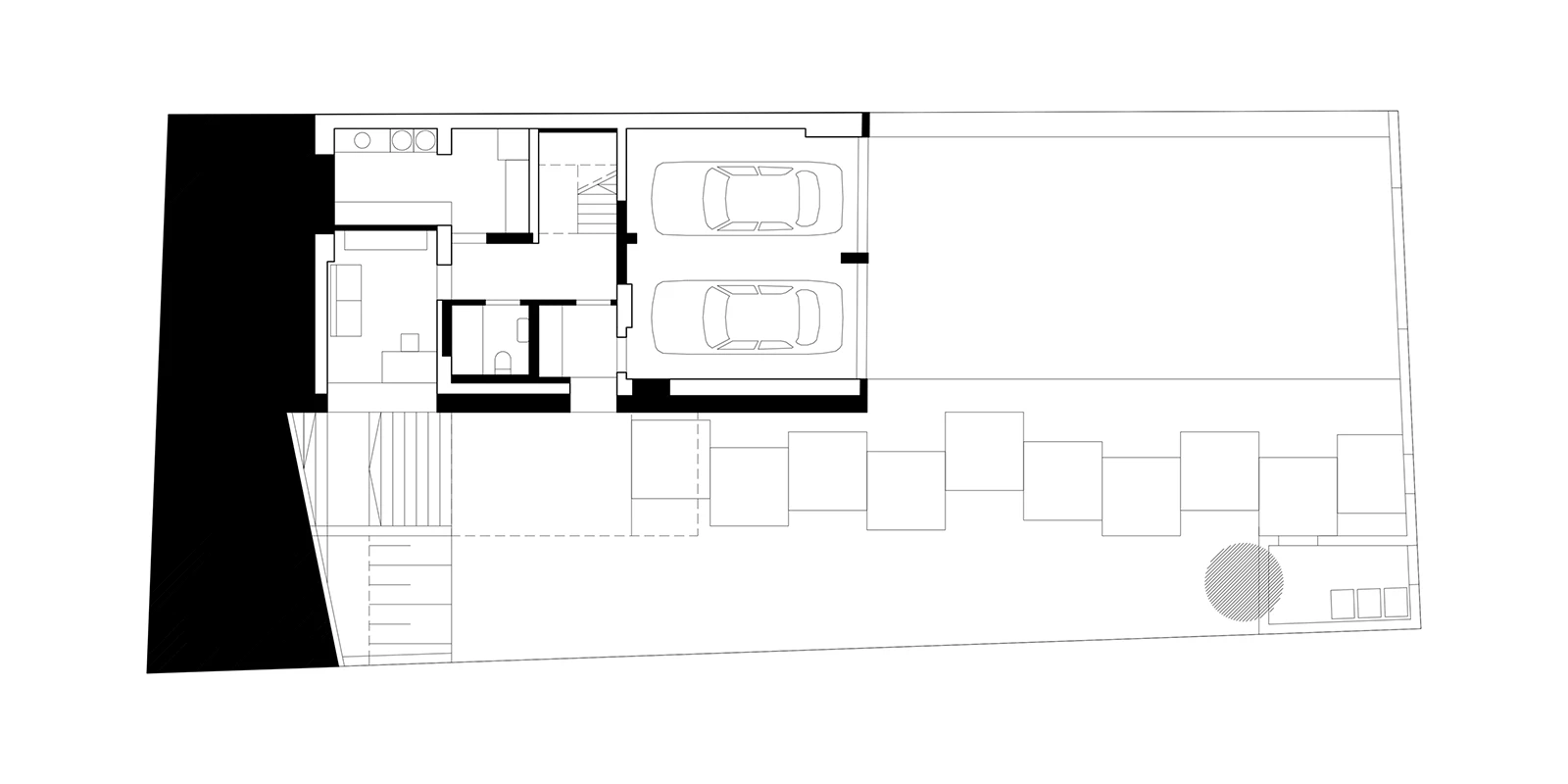
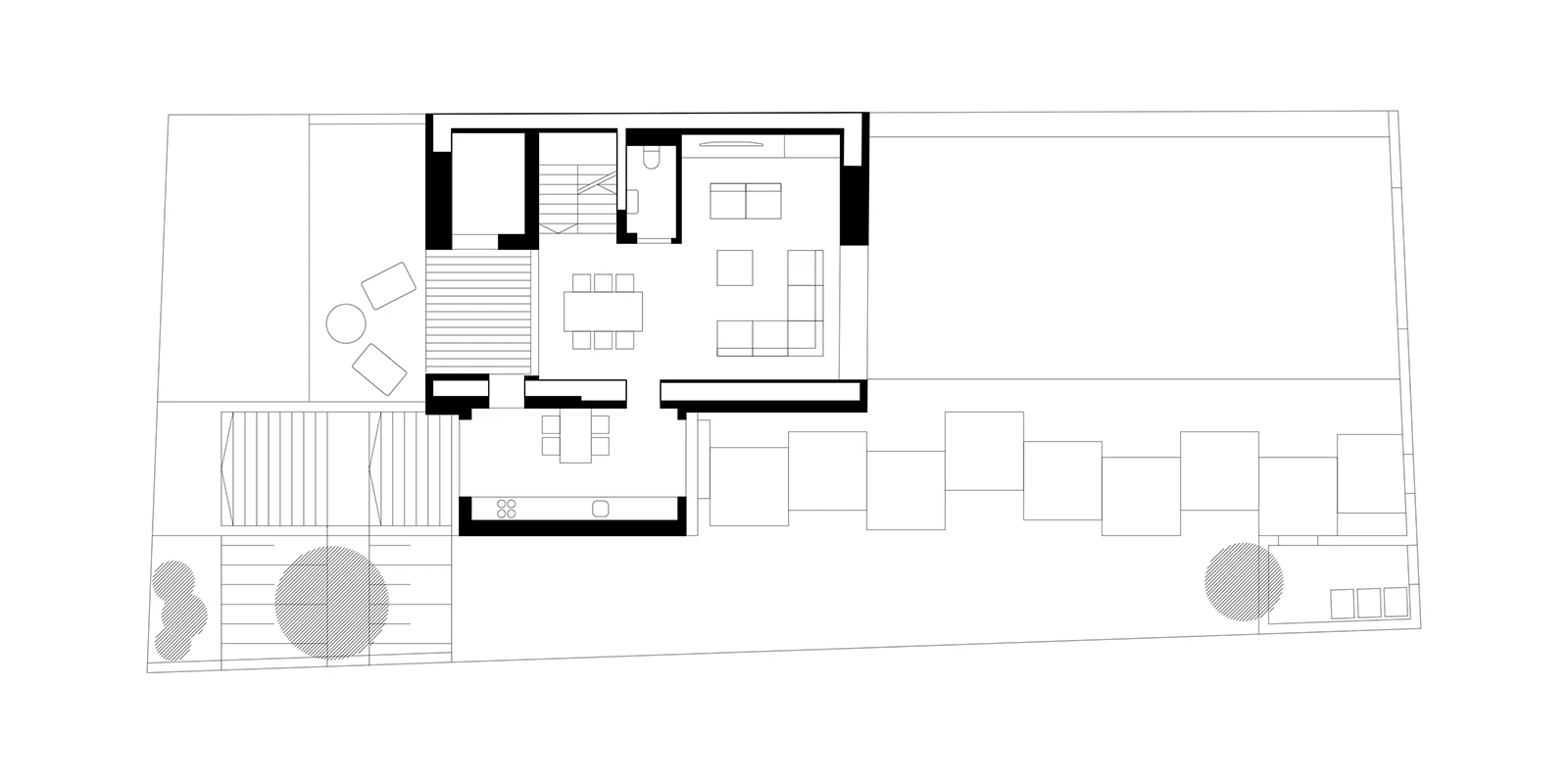
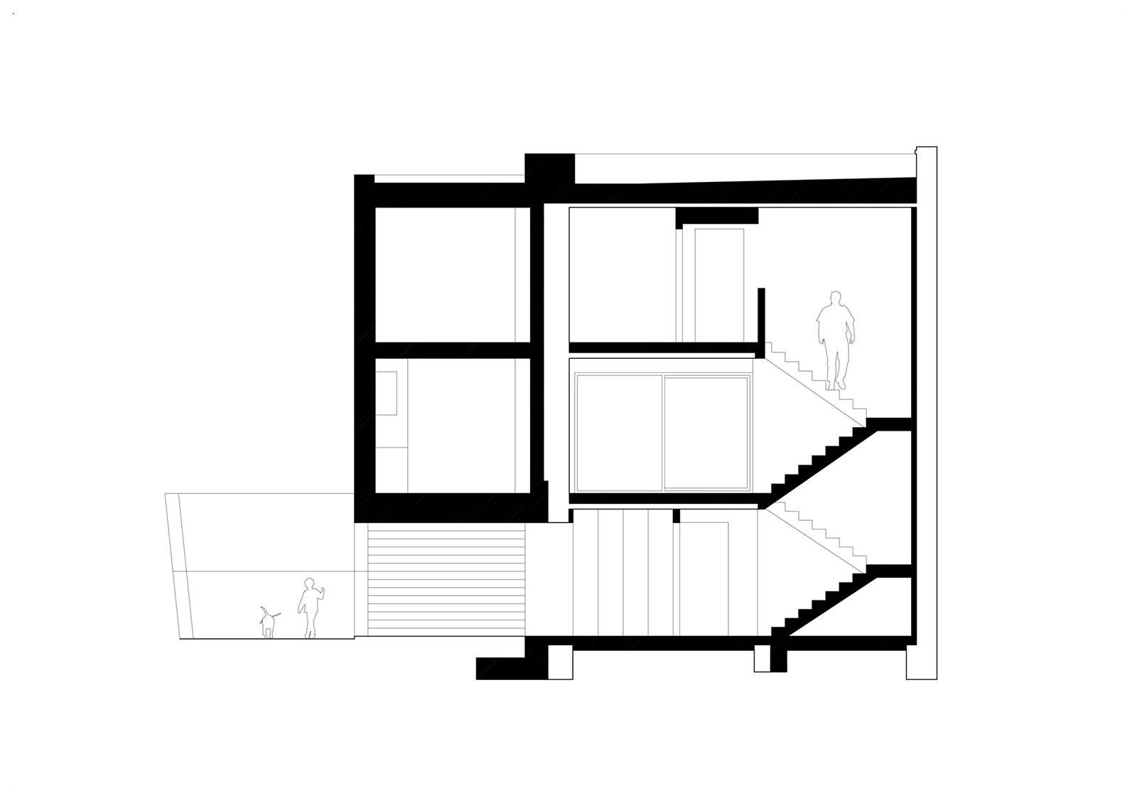
Przebudowa domu w zabudowie bliźniaczej
Galeria
Udostępnij:
Inne projekty tego architekta
Produkty pasujące
360 Rainbow Snowdust
Autorzy
Kluj Architekci Sp. z o.
www.klujstudio.pl/Lokalizacja architekta
wielkopolskie
Jeżeli spodobał ci się ten projekt i chcesz nawiązać kontakt z jego twórcą, wypełnij formularz.