DzC 0297
Dom z werandą
Opis projektu
Dom jednorodzinny zaprojektowany dla pary z dwójką dzieci. Punktem wyjściowym w kształtowaniu funkcji oraz formy obiektu była fascynacja inwestorów kształtem nowoczesnej stodoły, oraz ich niechęć do otwartych, przenikających się przestrzeni wewnątrz domu. Bryłę domu w kształcie uproszczonej stodoły rozszerzyliśmy więc o niewielką dobudówkę – werandę - w której znajduje się ustronna strefa wypoczynkowa, zawierająca salon z kominkiem, gabinet, czytelnie i zadaszony taras.
Weranda dostawiona jest do południkowo-zachodniego boku bryły domu, dzięki czemu słońce będzie towarzyszyć jej użytkownikom w najbardziej pożądanych porach wieczornych (zimą weranda wyeksponowana na słońce, latem, system zasłon i żaluzji zewnętrznych chronić będzie ją przed przegrzewaniem). Dodatkowo duże przesuwne okna ukierunkowane są na rozległy ogród, dzięki temu rozmyje się granica między wnętrzem a zewnętrzem.
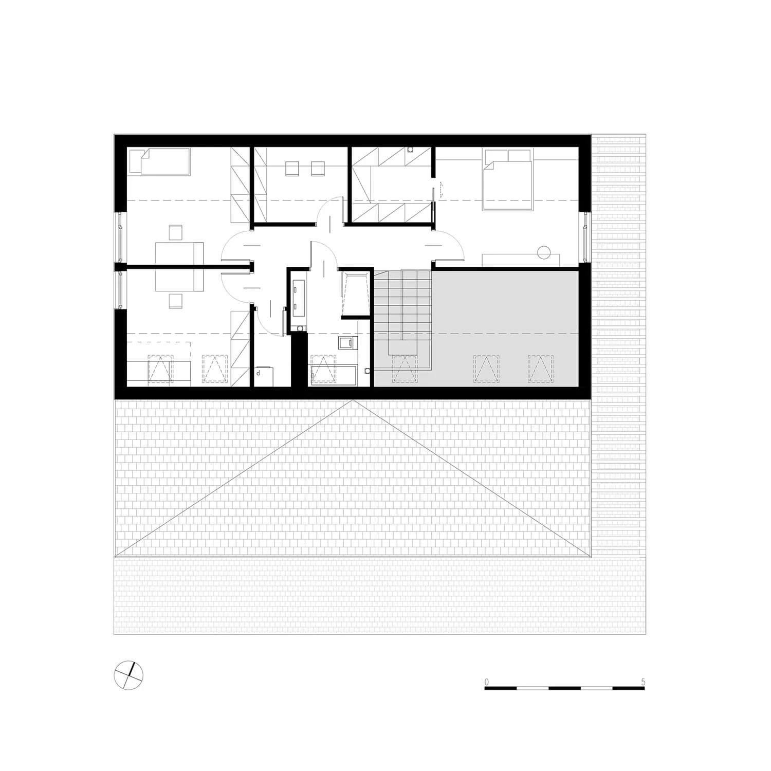
Pozostała część obiektu – o kształcie stodoły – zawiera pomieszczenia dopełniające klasyczny układ funkcjonalny domu jednorodzinnego. Na parterze znajduję się m.in. przestronna jadalnia z wysokim sufitem, kuchnia z wyspą i ogromnym horyzontalnym oknem z widokiem na podjazd (okno ukierunkowane na północny wschód – rano słońce będzie towarzyszyć domownikom podczas śniadania) oraz umiejscowiona pod schodami łazienka z sauną, która w efektywny sposób wykorzystuje tę trudną przestrzeń. Na piętrze znajduję się strefa nocna z trzema sypialniami, garderobą, przestronną łazienką oraz pralnią.
Materiały elewacyjne domu to cegła klinkierowa, dachówka bitumiczna oraz drewniana stolarka okienna – wszystkie utrzymane w ciemnobrązowej kolorystyce. Wnętrza domu na życzenie klienta nawiązują do stylu wabi-sabi, do ich wykończenia wybraliśmy więc wyłącznie naturalne materiały – drewno, beton i stal. We wnętrzu nowoczesnym meblom towarzyszyć będą rustykalne dodatki. Całość utrzymana jest w bardzo ciepłej kolorystyce.
Zespół projektowy: Paweł Lipiński, Mateusz Frankowski, Fryderyk Graniczny
Powierzchnia: 220.0 m2
Projekt: 2019
Realizacja: planowana 2019-2020
Galeria
















Udostępnij:
Produkty pasujące


122 Brama
Autorzy

GGrupa
ggrupa.plLokalizacja architekta
mazowieckie
Jeżeli spodobał ci się ten projekt i chcesz nawiązać kontakt z jego twórcą, wypełnij formularz.