DzC 0334
Dom Przesunięty
Opis projektu
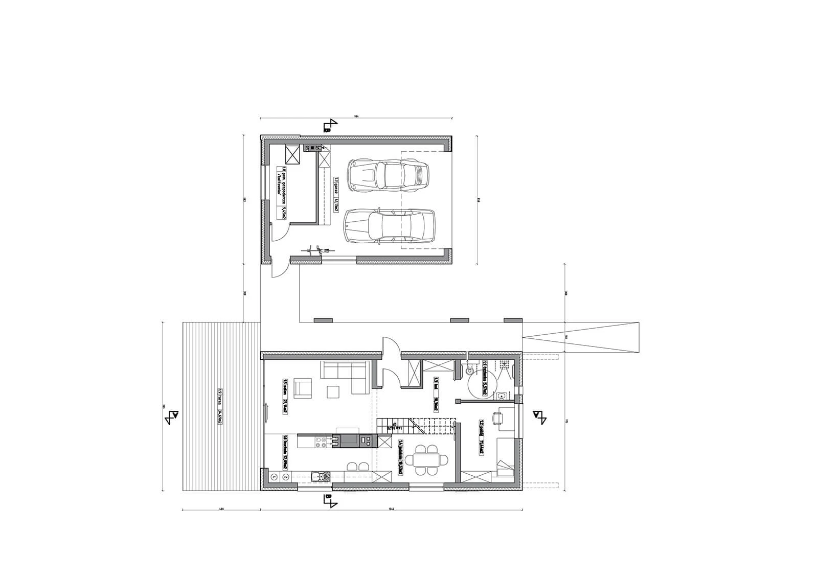
Ideą projektu jest stworzenie nowoczesnego domu mazurskiego nawiązującego swoim charakterem do historycznej zabudowy tego regionu. Prosta bryła budynku została urozmaicona po przez przesunięcie części poddasza o dwa metry w stronę drogi, tworząc reprezentacyjny podcień charakterystyczny dla budownictwa tego regionu, oraz przez wykończenie elewacji materiałami powszechnie używanymi w typowych domkach mazurskich /biały tynk na parterze i czerwona cegła z czerwoną dachówką na piętrze oraz niebieskie okna wraz z drewnianymi przesuwnymi okiennicami. Dom mieszkalny i garaż zostały oplecione „białą wstęgą”, która scala ze sobą te dwie bryły budynków.
Autorzy projektu:
Kamil P. Trojniel / MANUstudio
Rafał Sienica / RS Architekci
Grzegorz Wolski
Galeria
Udostępnij:
Produkty pasujące
Wiesmoor erd cieniowana
Autorzy
MANUstudio
artstudio.bialystok.plLokalizacja architekta
podlaskie
Jeżeli spodobał ci się ten projekt i chcesz nawiązać kontakt z jego twórcą, wypełnij formularz.