DzC 0365
Dom ze starej stodoły
Opis projektu
Dom ze starej stodoły - drugie życie cegły
Obrzeża Poznania to połączenie bujnych lasów, pól uprawnych wraz z zabudową rolniczą i szybko rozrastających się osiedli domów jednorodzinnych. Projektowany dom powstał w miejscu gdzie te trzy strefy się spotykają.
Rozglądając się po okolicy, uwagę zwracają stare poniemieckich stodoły. Są to ceglane proste budynki o wyważonych proporcjach z nienagannym detalem, które wdzięcznie znoszą próbę czasu. Dziś często są to opuszczone nieużytki. Pomimo swych lat wyróżniają się na tle nowo-powstałych budynków.
W trakcie projektowania wpadliśmy z inwestorem na pomysł by nie tylko inspirować się tą najlepszą lokalną architekturą, ale też bezpośrednio z niej skorzystać. I tak powstał plan by odkupić i rozebrać starą, opuszczoną stodołę, znalezioną w okolicznej wsi, i z tego materiału zbudować nowy dom na naszej działce. To jedna z tych genialnych w swej prostocie decyzji, które zmieniają wszystko.
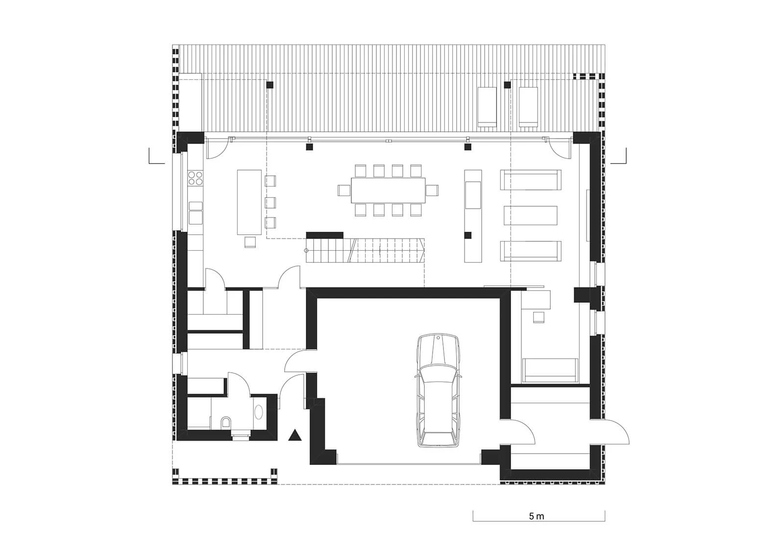
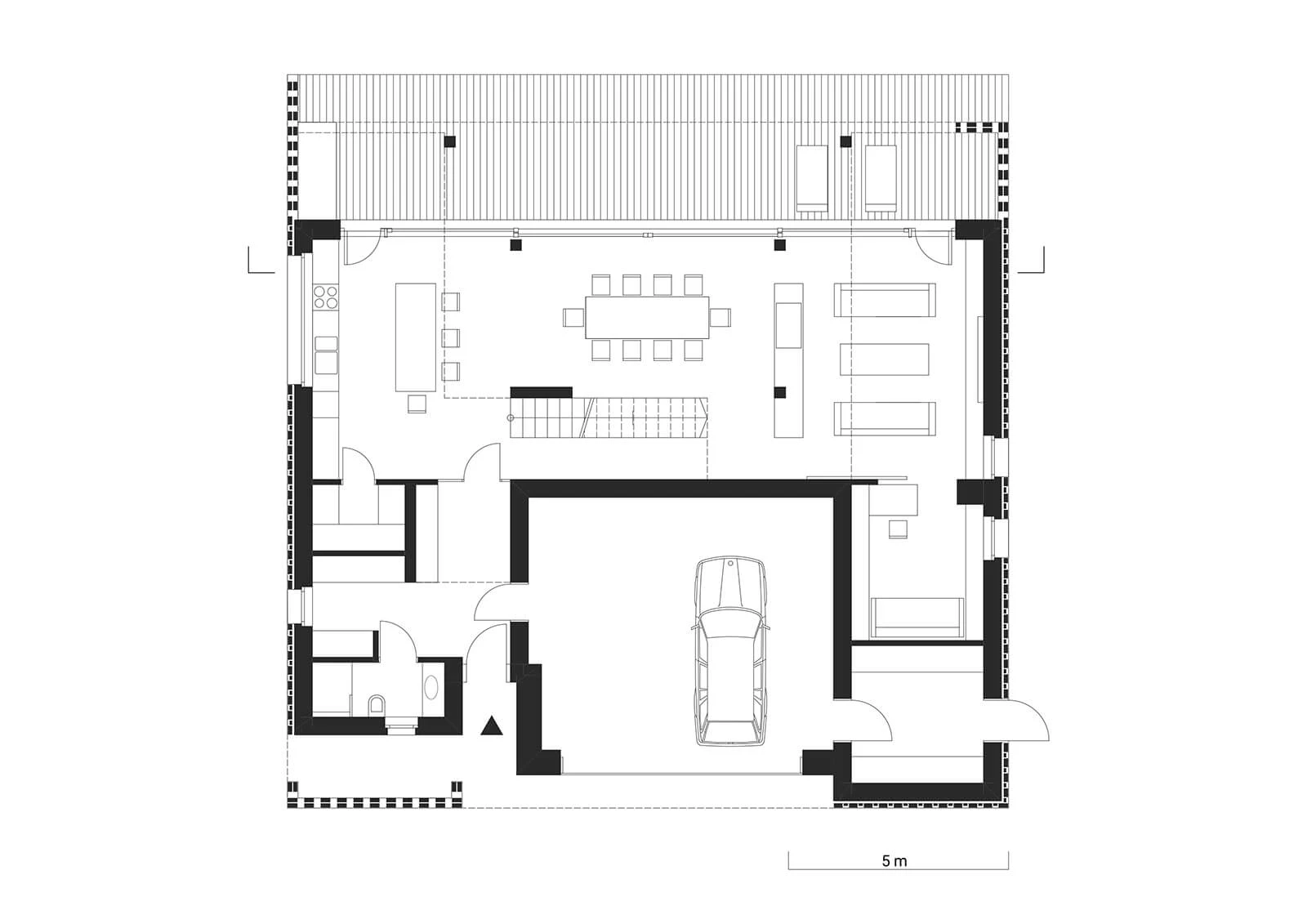
Olbrzymim atutem wąskiej działki, na której powstał dom jest bezpośrednie sąsiedztwo lasu. Już po otwarciu drzwi wejściowych uwagę przykuwa piękny widok na zieleń. Cała wspólna przestrzeń parteru, czyli połączenie kuchni, jadalni i salonu to jedno wielkie, długie na całą szerokości elewacji szklane otwarcie na las zwieńczone tak samo długim tarasem. Wrażenie to potęgują wysokie przestrzenie kuchni oraz salonu sięgające 5 metrów. W tą wysoką otwartą przestrzeń, na poziomie pierwszego piętra został wstawiony moduł zawierający łazienkę, garderoby i sypialnie z obowiązkowym widokiem na las. Ten “lewitujący” moduł tworzy nadwieszenie nad parterem. Osłania taras przed deszczem i daje na nim cień. Nietypowym rozwiązaniem jest umiejscowienie garażu na środku domu. Pozwala to bezpośrednio połączyć garaż z hallem wejściowym, spiżarnią, kotłownią i pomieszczeniem gospodarczym. Nad garażem znajdują się pokoje dzieci z dodatkowym strychem.
Cegły ze starej stodoły zostały wykorzystane do stworzenia nowej elewacji. Historyczny materiał nadaje miejscu niepowtarzalną atmosferę i nastrój. Elewacja składa się z czterech typów wiązań cegieł o różnym poziomie rozrzeźbienia i transparentności. Detal elewacyjny podkreśla strefy domu. Ażurowe ceglane ściany wpuszczają widoki do wnętrz i łączą je z otoczeniem. Takie ułożenie elewacji było dużym wyzwaniem dla pracujących na budowie murarzy co nawiązuje do dawnego podejścia do rzemiosła budowlanego. Prosta forma domu nie konkuruję z rozrzeźbioną fasadą. Jest dla niej tłem i jednocześnie ją podkreśla.
Ponowne wykorzystanie materiału z opuszczonego budynku dało mu drugie życie i stworzyło dodatkowe walory architektoniczne nowego domu.
Lokalizacja: okolice Poznania, Polska
Powierzchnia użytkowa: 270m2
Projekt: 2016
Data ukończenia: 2020
Galeria
Udostępnij:
Inne projekty tego architekta
Produkty pasujące
90 Oud Warande
Autorzy
Wrzeszcz Architekci
wrzeszczarchitekci.plLokalizacja architekta
wielkopolskie
Jeżeli spodobał ci się ten projekt i chcesz nawiązać kontakt z jego twórcą, wypełnij formularz.