DzC 0452
Dom w Siemianach
Opis projektu
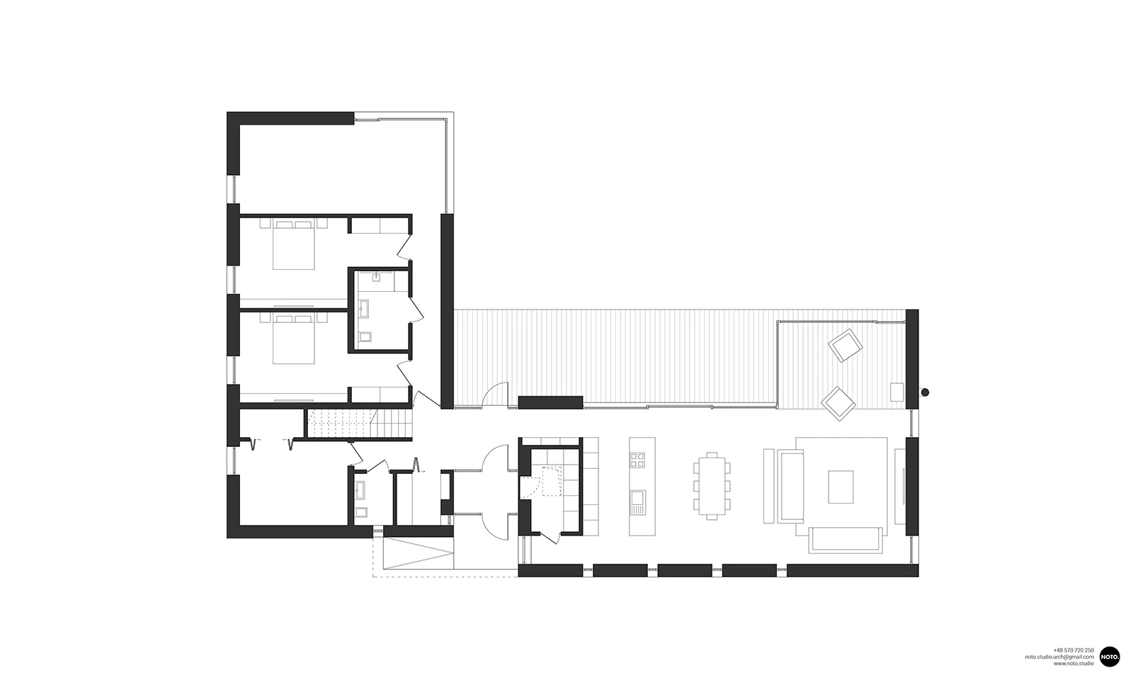
Pomysłem na dom w Siemianach jest układ 2 brył połączonych ze sobą łącznikiem. Ich ustawienie tworzy, razem z istniejącą zielenią, zamknięty układ krajobrazowy. Jedna z brył, zawierającą część dzienną – kuchnię, jadalnię oraz salon, jest parterowa z otwartym sufitem. Druga, piętrowa, stanowi część prywatną Klientów. Istotnym elementem projektu jest duży taras, który rozciąga się wzdłuż części dziennej – kadrując widok na krajobraz. Na zakończeniu tarasu zaprojektowana została część kominkowa.
Współpraca: NOTO.STUDIO
Galeria









Udostępnij:
Inne projekty tego architekta
Produkty pasujące


Fehnbrand jasnoczerwona cieniowana
Autorzy

TZA
tzarch.pl/Lokalizacja architekta
mazowieckie
Jeżeli spodobał ci się ten projekt i chcesz nawiązać kontakt z jego twórcą, wypełnij formularz.