DzC 0499
Dom w ceramice
Opis projektu
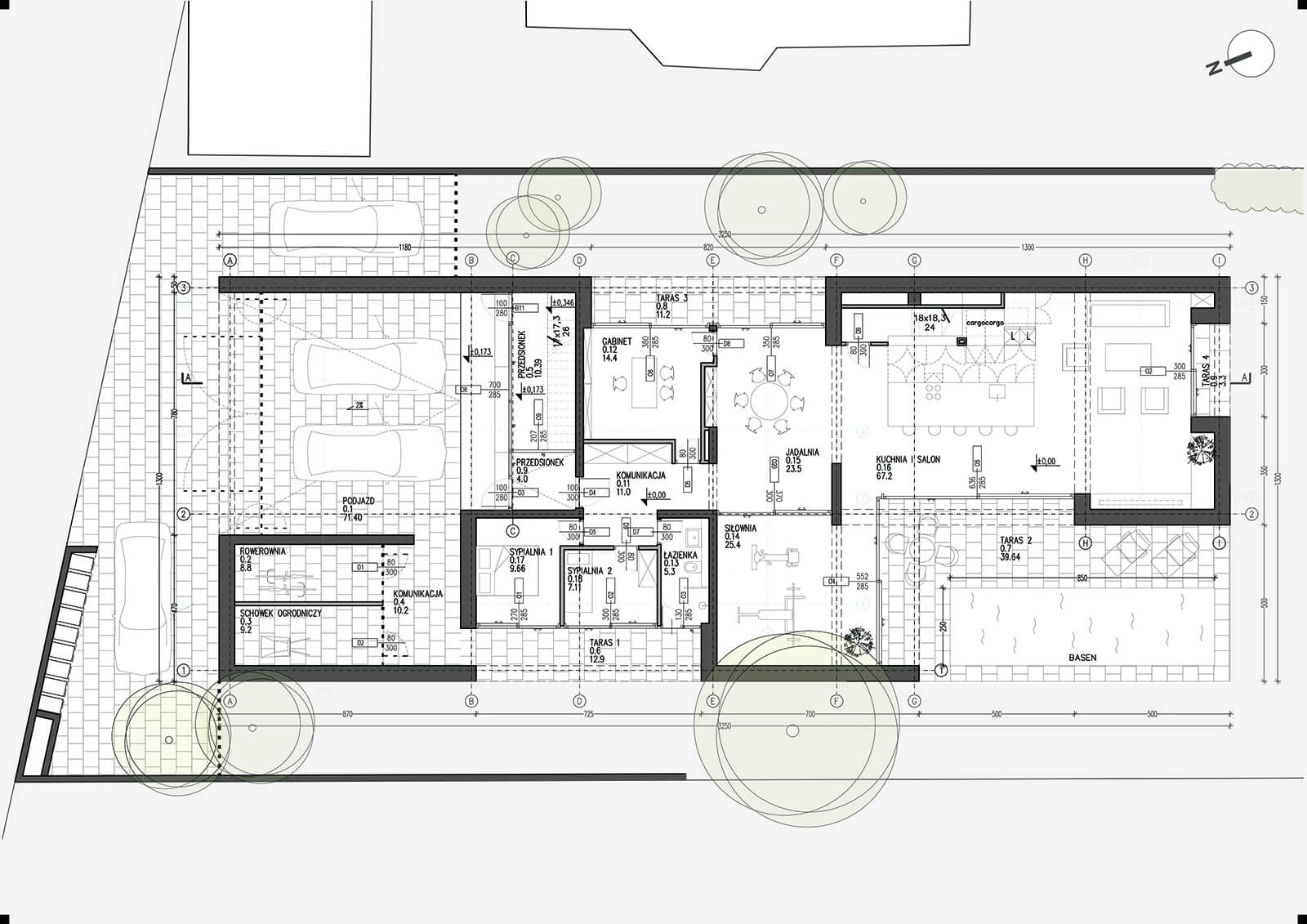
Projekt uwzględnia potrzeby inwestora, uwarunkowania panujące na działce i kontekst urbanistyczny otoczenia. Bryła budynku złożona jest z wzajemnie przenikających się prostopadłościanów. Ich ułożenie pozwala na zachowanie prywatności i najkorzystniejsze doświetlenie. Priorytetem kompozycyjnym było stworzenie niedominującej w przestrzeni bryły, która zawierałaby zadany program funkcjonalny- apartament inwestora oraz dwie niezależne strefy gościnne. Wynikiem tego jest rozdzielenie kubatury na mniejsze części. Parter budynku tworzy bryła złożona z dwóch, przesuniętych względem siebie, prostopadłościanów. Piętro zostało cofnięte względem parteru tworząc przestrzenie tarasowe.
Północna strona działki zawiera dojazd, cztery miejsca postojowe oraz przestronną część wejściową z pomieszczeniami gospodarczymi. W tej strefie znajdują się także wejścia do budynku - dla właściciela oraz niezależne dla gości. Na pozostałą część parteru składa się strefa dzienna - z dużymi przeszkleniami na taras- gabinet, dodatkowe dwa pokoje oraz sala fitness, którą z łatwością można przearanżować na kolejną sypialnię czy połączyć ze strefą dzienną. Piętro składa się z dwóch rozdzielonych brył - strefy gościnnej, oraz sypialni z garderobą, łazienką i pralnią. Rozdzielenie to zapewnia komfort przestrzenny i akustyczny. Pomiędzy nimi znajduje się ustronny taras sprzyjający zachowaniu prywatności. Wszystkie przeszklenia zostały cofnięte względem fasady budynku tworząc zacienienia i dodatkowe tarasy. Bryłę zaprojektowano w taki sposób, aby zapewnić harmonijnie kompozycji pełnych ścian oraz dużych przeszkleń.
inwestor: prywatny
data: 2020
zakres: projekt koncepcyjny
autor: Tomasz Głowacki
zespół: Agata Ręczkowska, Monika Tomaszewska
Galeria















Udostępnij:
Produkty pasujące


Oslo perłowobiała gładka
Autorzy

Pracownia Architektury Głowacki
www.paglowacki.plLokalizacja architekta
dolnośląskie
Jeżeli spodobał ci się ten projekt i chcesz nawiązać kontakt z jego twórcą, wypełnij formularz.