DzC 0608
Nowoczesna stodoła
Opis projektu
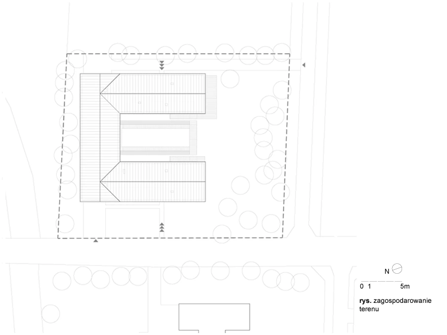
Pełczyce to niewielka, malownicza wieś pod Wrocławiem, która sprawia wrażenie opuszczonej. W tej urokliwej okolicy ma powstać dom dla dwóch pokoleń, w którym częścią łączącą będzie sala do medytacji. Nowoczesny dom w kształcie litery “U” inspirowany jest zabudową regionu.
Charakterystycznym elementem stodół do przechowywania siana są bramy umożliwiające przejazd ciągnika bezpośrednio na teren uprawny. Taki widok na przestrzał, z placu na naturalny pejzaż, stał się inspiracją przy kształtowaniu układu domu. Strefy mieszkalne dwóch części domu usytuowane są symetrycznie, w środkowej części budynku łączą się salą zen.
Części dzienne dwóch skrzydeł wyposażone są w duże narożne przeszklenia, przez co są bardzo jasne. Części z pokojami mają małe okna, nawiązując do okien zabudowań gospodarczych. Sala ćwiczeń, po otwarciu okien usytuowanych na dwóch przeciwległych ścianach, łączy dziedziniec z drugą stroną domu. W środku budynku znajduje się otwór na chowane segmentowe zadaszenie basenu, rozsuwane na wiosnę i jesień. Dom, swoim układem i stylistyką, tworzy przyjazną i komfortową przestrzeń do spokojnego i uważnego życia, wkomponowując się przy tym w otoczenie.
Inwestor: prywatny
projekt: 2016
etap projektu: projekt koncepcyjny
powierzchnia: 627m2
lokalizacja: Pełczyce k. Wrocławia
Galeria
Udostępnij:
Inne projekty tego architekta
Produkty pasujące
Margate XLDF Szara cieniowana
Autorzy
Marmur Studio Anna Smardz
marmurstudio.com/Lokalizacja architekta
śląskie
Jeżeli spodobał ci się ten projekt i chcesz nawiązać kontakt z jego twórcą, wypełnij formularz.