DzC 0020
Dom w Bytomiu Typ B I
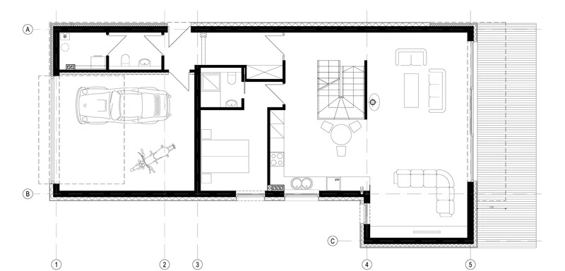
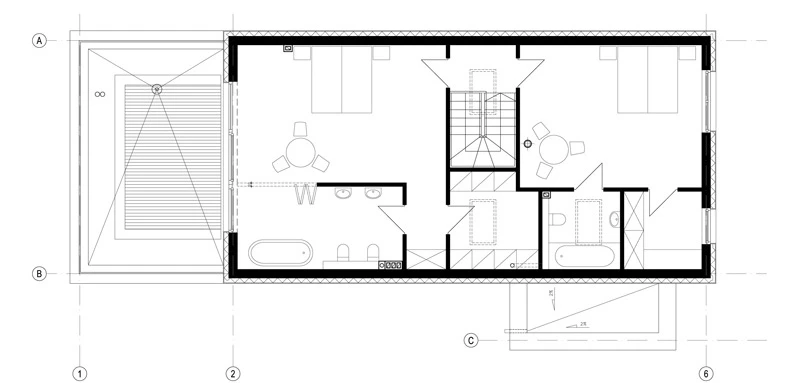
Opis projektu
Modyfikacja domu typ BI w Bytomiu na osiedlu Srebrne Stawy.
lokalizacja: Bytom
powierzchnia: ~ 190 m2 + garaż
typ: projekt budowlano-wykonawczy
inwestor: prywatny
autorzy: Marcin Jagiełło, Jarek Krysiak
data: 2013
Galeria
Udostępnij:
Inne projekty tego architekta
Produkty pasujące
20 Oude Kuststeen
Autorzy
Jagiełło Krysiak Architekci
www.jk-a.plLokalizacja architekta
śląskie
Jeżeli spodobał ci się ten projekt i chcesz nawiązać kontakt z jego twórcą, wypełnij formularz.