DzC 0049
Dom ryglowy w Pilchowie
Opis projektu
To nasz pierwszy samodzielny projekt – przez lata spoczywał w archiwum naszej pracowni ale teraz postanowiliśmy go „odkurzyć”. Projekt uzyskał pozwolenie na budowę w 2009 roku, a rok później jego konstrukcja drewniana była gotowa do ustawienia na placu budowy. Niestety, z przyczyn niezależnych od nas do realizacji ostatecznie nie doszło – zdecydowały o tym wypadki losowe inwestora. Niemniej wokół tego projektu ukształtowała się cała ideowość naszej wówczas młodej, acz ambitnej pracowni. Projekt był taż przedmiotem publikacji naukowej (link tutaj). Dziś, mamy w dorobku więcej – być może ładniejszych albo bardziej praktycznych – i przede wszystkim zrealizowanych projektów. Niemniej to właśnie w tym pierwszym, udało nam się jak w soczewce zawrzeć wszystkie idee, którymi do dziś się kierujemy:
Po pierwsze: Dom uszyty na miarę jego mieszkańców.
Takiego sformułowania użył inwestor, gdy pierwszy raz przekroczył progi naszej pracowni. Chodziło o to, żeby nie bać się przełamywać konwencji. „Co z tego że wszyscy mają wejście główne na parterze, a strefę prywatną na piętrze – „ja chcę mieć na odwrót bo tak będę z tego korzystać”. To tylko jeden z wielu przykładów indywidualnego podejścia, kiedy naszą rolą było podążanie za inwestorem i „obudowywanie jego potrzeb ścianami”. Sztuką było robienie tego w taki sposób, aby indywidualne wymagania przekuć na uniwersalną estetykę.
Po drugie: Dom płynnie połączony z krajobrazem.
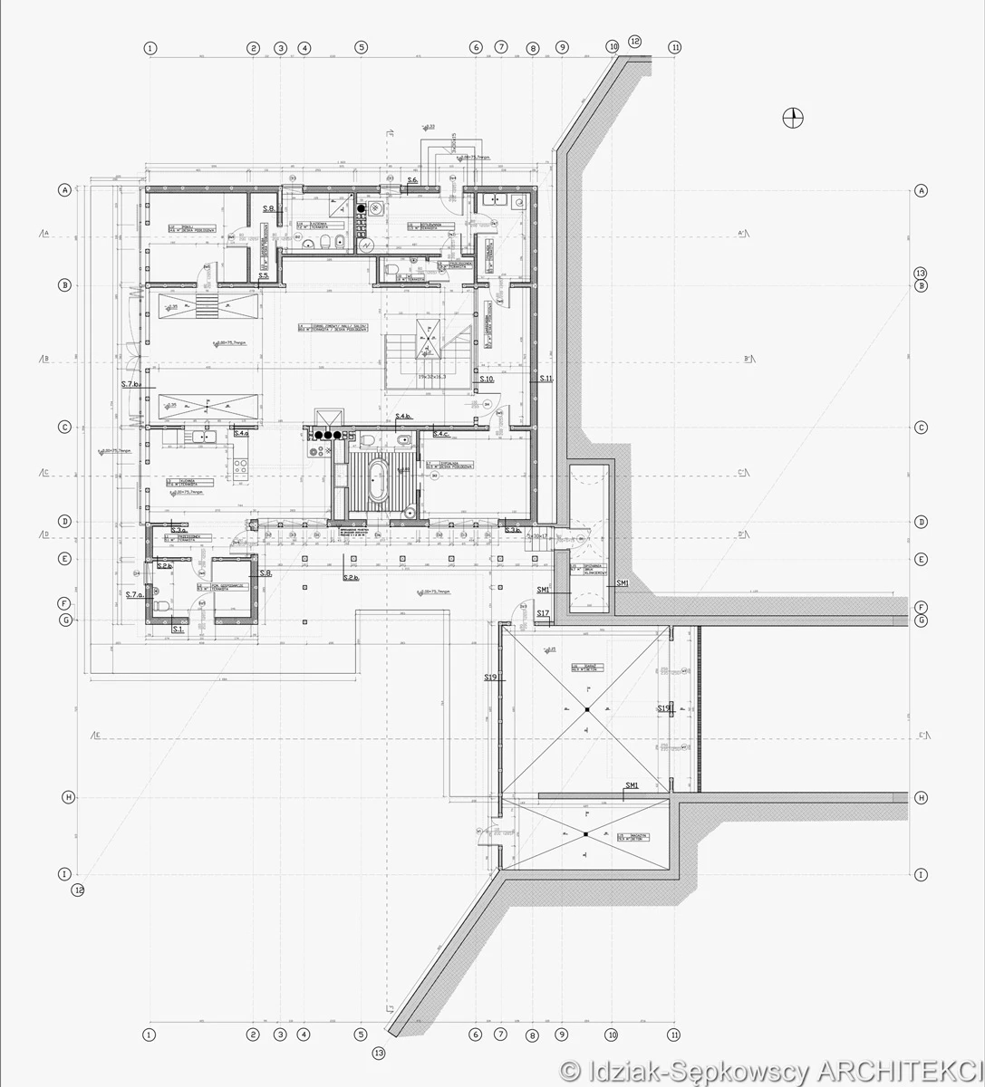
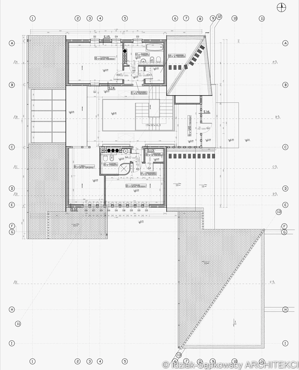
W tym przypadku dosłownie – dom jest zagłębiony w terenie – w taki sposób wykorzystaliśmy pochyłość działki, że elewacją frontową jest ściana poddasza. Z perspektywy ulicy do domu więc się „schodzi”, a nie „wchodzi”. Dzięki temu kubatura tego dość dużego budynku nie stałaby się „ciałem obcym” w krajobrazie. Przeciwnie – płynnie się z nim zlewa, zwłaszcza że część dachu pokryta jest roślinnością.
Po trzecie: Ogród obudowany domem.
Dom nie jest tylko połączony z krajobrazem, ten krajobraz dosłownie „wchodzi do domu”. Sercem jest tu centralnie umieszczona dwukondygnacyjna oranżeria. Inwestor wymarzył sobie szklany ogród zimowy, ale bardzo nie chciał aby wyglądał on jak „szklane ufo doklejone do domu”. Dlatego w tym projekcie ogród zimowy jest integralną częścią bryły – wyróżnia się jedynie szklanym dachem. Takie usytuowanie sprawia, że pełni on również funkcję salonu, głównego holu komunikacyjnego – jest pierwszą przestrzenią, którą widzi się po wejściu/zejściu do domu. „Zaprojektujcie mi ogród i obudujcie go domem” – takie niebanalne zadanie postawił przed nami inwestor.
Po czwarte: Dom skromny z zewnątrz – bogaty wewnątrz.
Idea znana jeszcze z czasów antycznych, kiedy atrialne domy rzymskie to co najcenniejsze chowały w środku. Przecież w końcu budujemy dla siebie a nie dla sąsiadów. W tym przypadku „ukrycie” domu wynikło na wprost z jego zagłębienia w terenie. Przechodzień idący ulica nawet nie domyśliłby się, że za skromną konstrukcją wystająca z ziemi kryje się pokaźna rezydencja.
Po piąte: Połączenie tradycji z nowoczesnością zgodnie z „duchem miejsca”.
To inwestor wybrał technologię domu – miał być wybudowany w tradycyjnej konstrukcji ryglowej (mur pruski). Jednocześnie chciał unikać skojarzeń rustykalnych. Z tradycji budownictwa ryglowego na Pomorzu mieliśmy wyciągnąć jej „ducha” ale niczego nie kopiować. Dlatego powstał dom o konstrukcji tradycyjnej i zupełnie nowoczesnej formie – choć takiej, żeby nie być dosłownymi, drewniane belki przekornie pomalowaliśmy na biało, a nie tak jak w starych ryglowych chatach – na czarno.
Te pięć idei – można powiedzieć pięć przykazać architekta – wykrystalizowało się w tym niezwykłym projekcie i właściwie w większości do dziś pozostają naszym drogowskazem. Nie bez znaczenia była tu postawa inwestora, który umiał wykorzystać nasz młodzieńczy zapał – z tego miejsca serdecznie go pozdrawiamy. Wspólna praca Panie Robercie była dla nas niezwykła przygodą twórczą, którą zapamiętamy do końca życia. Marek i Jędrzej.
Galeria








Udostępnij:
Produkty pasujące


86 Boston
Autorzy

IS Architekci
isarchitects.eu/Lokalizacja architekta
małopolskie
Jeżeli spodobał ci się ten projekt i chcesz nawiązać kontakt z jego twórcą, wypełnij formularz.