DzC 0055
Dom w Gliwicach
Opis projektu
Projekt przedstawia rozbudowę domu jednorodzinnego należącego do zespołu budynków osiedla robotniczego w Gliwicach. Objęty ochroną konserwatorską obiekt charakteryzuje się świetnymi proporcjami, dlatego też rozbudowywana część budynku ściśle nawiązała do zastanej formy. Historyczna część została pokryta cegłą klinkierową, natomiast nowa – ciemnoszarym tynkiem. Integralnym elementem rozbudowywanej części jest garaż, zgrabnie wpisujący się w całość założenia.
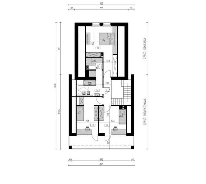
Zestawienie powierzchni:
0.1-Przedpokój: 8,8m2
0.2-Kuchnia: 25,6m2
0.3-Gabinet: 9,0m2
0.4-Łazienka: 4,9m2
0.5-Pralnia: 2,2m2
0.6-Komunikacja: 3,6m2
0.7-Salon: 55,1m2
SUMA powierzchni użytkowej poddasza: 56,59m2
Suma powierzchnia użytkowej: 164,7m²
Pow. zabudowy: 144,0m²
Wym. zewnętrzne budynku: 14,36x17,36m
Dach: Dach dwuspadowy, nachylenie 50 st.
Galeria





Udostępnij:
Inne projekty tego architekta
Produkty pasujące


80 Oud Leie
Autorzy


jmsSTUDIO - ARCHITEKCI
www.architekt-krakow.pl/Lokalizacja architekta
małopolskie
Jeżeli spodobał ci się ten projekt i chcesz nawiązać kontakt z jego twórcą, wypełnij formularz.