DzC 0059
Dom z przeszkleniem wertykalnym
Opis projektu
Głównym motywem architektonicznym domu jest bezkompromisowe przeszklenie na całą wysokość budynku. W ten sposób granica między wnętrzem, a zewnętrzem domu zaciera się, co wpływa na większą integrację mieszkańców ze środowiskiem zewnętrznym terenu konkursowego.
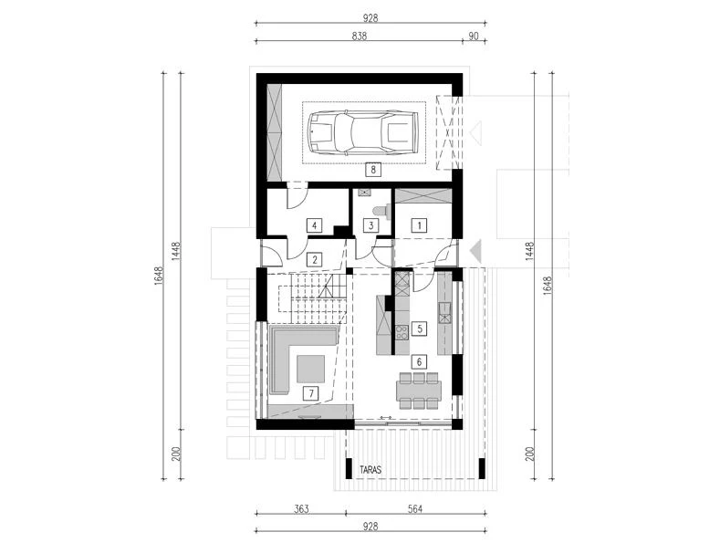
Zestawienie powierzchni:
1-Wiatrołap – 7,52m2
2-Komunikacja – 7,39m2
3-WC – 3,01m2
4-Pomieszczenie techniczne – 6,14m2
5-Kuchnia – 7,92m2
6-Jadalnia – 6,44m2
7-Salon – 23,13m2
8-Garaż – 29,96m2
Suma powierzchni użytkowej parteru: 91,61m2
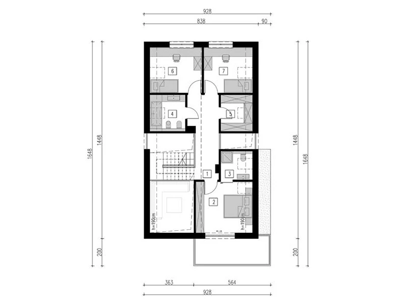
Suma powierzchnia użytkowej: 163,48m²
Pow. zabudowy: 121,34m²
Wym. zewnętrzne budynku: 9,28x16,48m
Dach: Dwuspadowy
Galeria





Udostępnij:
Inne projekty tego architekta
Produkty pasujące


60 Oud Brabant
Autorzy


jmsSTUDIO - ARCHITEKCI
www.architekt-krakow.pl/Lokalizacja architekta
małopolskie
Jeżeli spodobał ci się ten projekt i chcesz nawiązać kontakt z jego twórcą, wypełnij formularz.