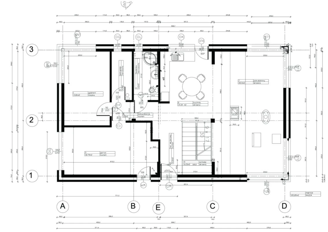
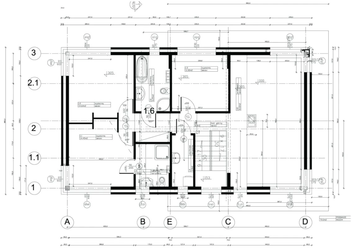
DzC 0111
T-Dom
Galeria
Udostępnij:
Inne projekty tego architekta
Produkty pasujące
Formback grafitowa cieniowana
Autorzy
Tomek Melak Projektowanie
www.tomekmelak.comLokalizacja architekta
mazowieckie
Jeżeli spodobał ci się ten projekt i chcesz nawiązać kontakt z jego twórcą, wypełnij formularz.