DzC 0113
Dom w Zabrzu
Opis projektu
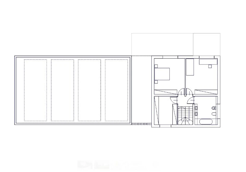
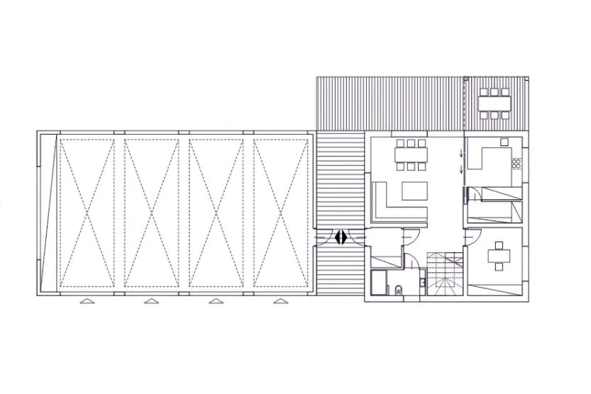
Dom z halą na pojazdy specjalistyczne
Rok: 2016
Lokalizacja: Zabrze
Powierzchnia: 140m2 dom + 140m2 hala
Galeria
Udostępnij:
Inne projekty tego architekta
Produkty pasujące
Aarhus szaro-biała
Autorzy
GIGAarchitekci Artur Garbula
gigaarchitekci.pl/Lokalizacja architekta
śląskie
Jeżeli spodobał ci się ten projekt i chcesz nawiązać kontakt z jego twórcą, wypełnij formularz.