DzC 0199
Dom jednorodzinny w Białej Podlaskiej
Opis projektu
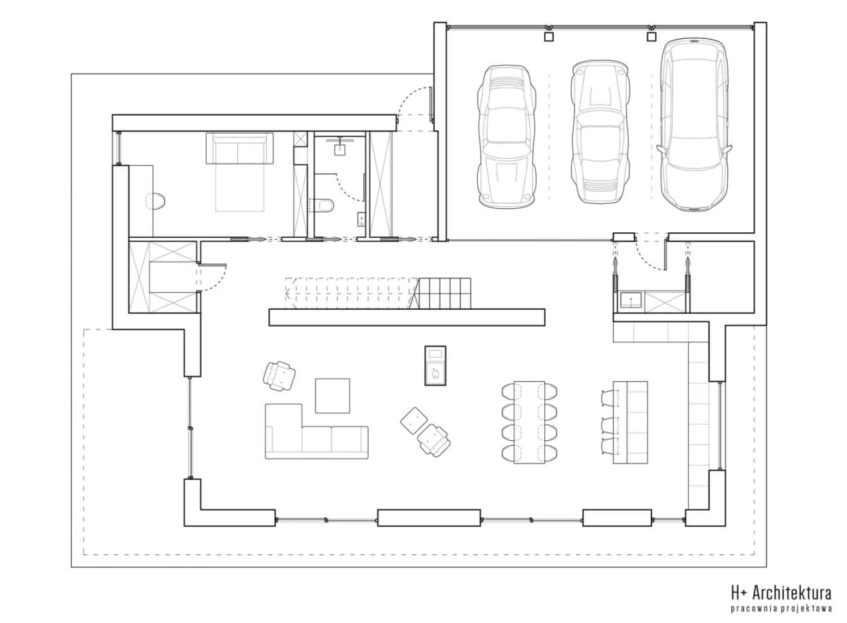
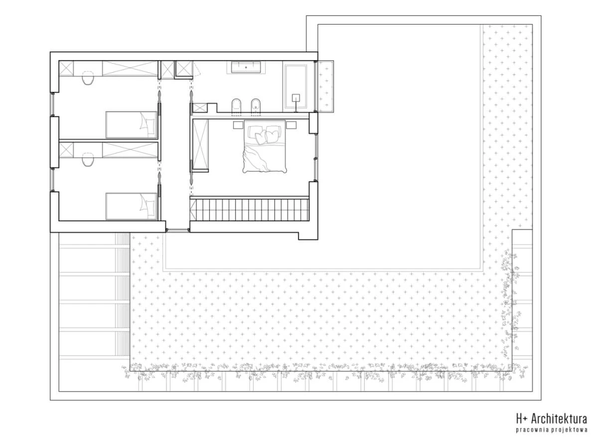
Projekt domu jednorodzinnego w podmiejskiej dzielnicy Białej Podlaskiej. Powierzchnia użytkowa projektowanego obiektu to 214 mkw z garażem w bryle budynku o powierzchni 54 mkw. Inwestorzy to małżeństwo z dzieckiem i planem na kolejnego potomka. Para uwielbia auta, stąd wymóg co do pojemnego garażu. Projekt zbudowany z trzech prostopadłościanów. Jednolite materiałowo, białe bryły garażu i piętra tworzą całość z ceglaną częścią z podcieniem. Elewacja od strony ulicy ascetyczna, bez okien ze względu na północną stronę świata – brak słońca – takie kształtowanie bryły zapewniło prywatność mieszkańców od ruchliwej strony. Jedynym akcentem jest szklane, oświetlone wejście główne. Pozostałe strefy domu zlokalizowane zgodnie z ruchem Słońca, otwarte na wschód, południe i zachód, dopasowane do trybu życia mieszkańców (snu, pracy, wypoczynku, posiłków). Całość utrzymana w spokojnej tonacji i naturalnych barw cegły, drewna i bieli.
Galeria
Udostępnij:
Produkty pasujące
593 Leonora
Autorzy
H+ Architektura | pracownia projektowa
www.haplus.plLokalizacja architekta
lubelskie
Jeżeli spodobał ci się ten projekt i chcesz nawiązać kontakt z jego twórcą, wypełnij formularz.