DzC 0217
Dom w Józefosławiu
Opis projektu
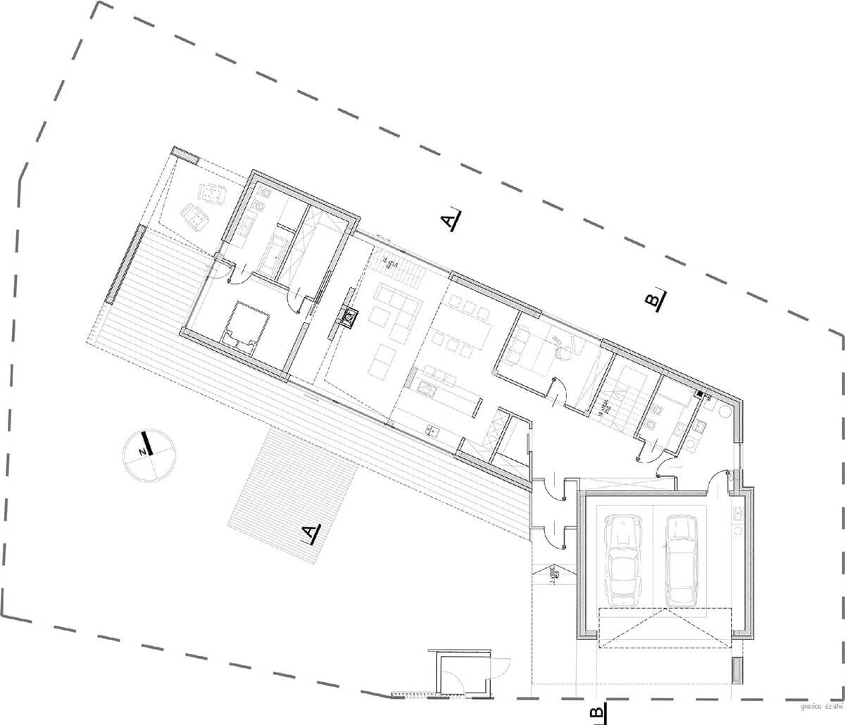
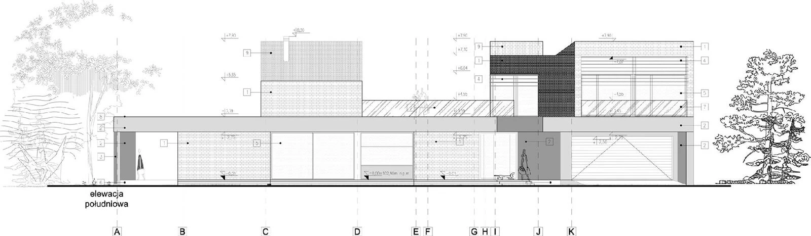
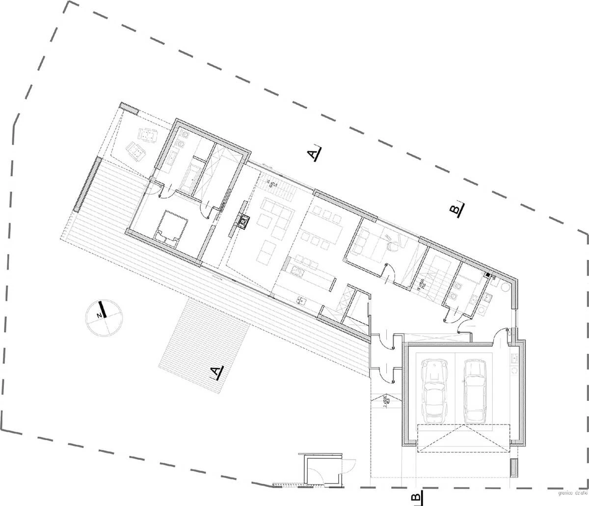
Budynek składa się z parterowego pawilonu z typowymi funkcjami dziennymi wraz z wydzieloną częścią sypialnianą gospodarzy domu oraz z dwóch brył osadzonych na płaskim, zielonym dachu. Pierwsza powiększa kubaturę części salonu, wspomaga funkcje biblioteką na antresoli i doświetla wnętrze dużym oknem z widokiem na szpaler strzelistych drzew usytuowanych w północnej granicy działki. Druga bryła piętrowej części budynku zawiera sypialnie dzieci wraz z zapleczem sanitarnym. Elewacje wykończone tynkiem silikonowym w kolorze białym, na części elewacji okładzina klinkierowa. Aby wypełnić zapisy MPZP zaprojektowano dachy spadziste pokryte materiałem elewacyjnym o nachyleniu pod kątem 16 stopni.
Galeria
Udostępnij:
Inne projekty tego architekta
Produkty pasujące
Westerwald czerwona gładka
Autorzy
PDV Architekci
www.pdv.plLokalizacja architekta
mazowieckie
Jeżeli spodobał ci się ten projekt i chcesz nawiązać kontakt z jego twórcą, wypełnij formularz.