DzC 0233
Dom VD02
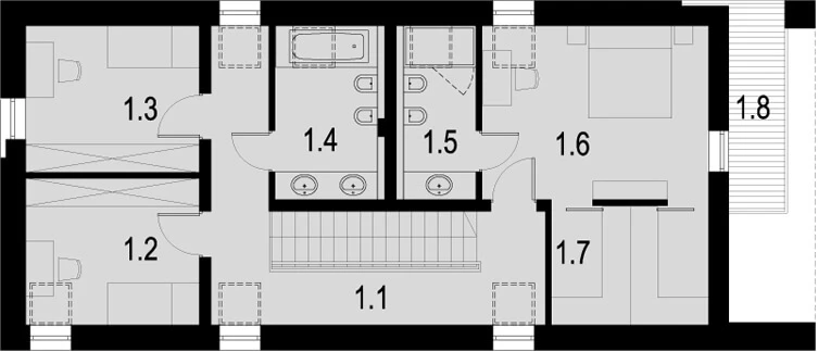
Opis projektu
Projekt inspirowany wiejską architekturą. Dom piętrowy o dwuspadowym dachu i zwartej bryle. Tradycyjny w formie, nowoczesny w wyglądzie i funkcjonalnie rozplanowany. Wykończony ponadczasowymi materiałami: klinkierem oraz drewnem, posiadający od strony salonu osłonięty taras.
Projekt energooszczędny.
Galeria





Udostępnij:
Inne projekty tego architekta
Produkty pasujące


Malmö perłowobiała
Autorzy

viadomo s.c.
www.viadomo.netLokalizacja architekta
dolnośląskie
Jeżeli spodobał ci się ten projekt i chcesz nawiązać kontakt z jego twórcą, wypełnij formularz.