DzC 0265
Dom parterowy A-19
Opis projektu
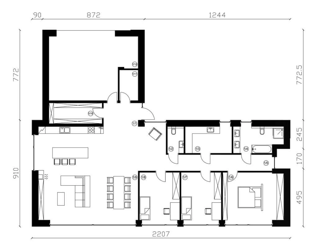
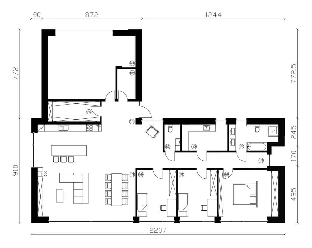
Projekt domu jednorodzinnego parterowego. Jego cechą charakterystyczną jest elewacja wykonana z cegły rozbiórkowej oraz elementy z malowanej blachy, pokrywające wnęki domu, okolice okien oraz bramy garażowej. Dodatkowo, dach kryty jest ciemną dachówką, dzięki czemu tworzy całość z blaszaną elewacją, co z kolei jest kontrastem dla czerwonej cegły.
Wnętrze domu jest bardzo przestronne i logicznie podzielone na strefę dzienną i nocną. Na samym wejściu znajdują się takie pomieszczenia jak: garderoba, spiżarnia oraz kuchnia, która połączona jest z jadalnią i salonem. Pomieszczenie to posiada ogromne przeszklenia na ogród i wyjście na taras. Dużą zaletą tej przestrzeni jest bardzo wysoki sufit i widoczna konstrukcja dachu, co nadaje jej wyjątkowego charakteru. Wejścia do pomieszczeń strefy nocnej połączone są wygodnym korytarzem. Na jego zakończeniu znajduje się przeszklenie, które wprowadza naturalne światło i optycznie go powiększa. Każda z sypialni jest bardzo przestronna, dzięki czemu również i ustawna. Tam także znajdują się ogromne okna z których roztacza się widok na ogród. Jedna z sypialni jest większa od pozostałych, ponieważ tuż za zagłówkiem łóżka znajduje się ścianka oddzielająca przestrzeń otwartej garderoby.
Dłuższa część budynku oddziela tym samym widok z ulicy na część prywatną działki. Budynek został zaprojektowany tak, by formą mógł wpisywać się w zielone oraz osiedlowe przestrzenie bez większych ograniczeń.
Galeria







Udostępnij:
Produkty pasujące


60 Oud Brabant
Autorzy

Nanostudio
www.nanostudio.pl/Lokalizacja architekta
wielkopolskie
Jeżeli spodobał ci się ten projekt i chcesz nawiązać kontakt z jego twórcą, wypełnij formularz.