DzC 0448
Projekt domu piętrowego
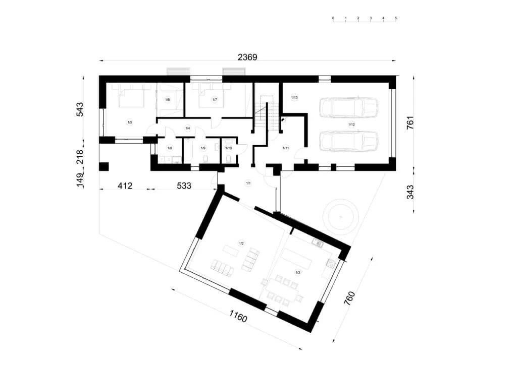
Opis projektu
Projekt domu jednorodzinnego piętrowego z piwnicą. Jego cechą charakterystyczną jest elewacja wykonana z cegły rozbiórkowej w okolicach otworów okiennych i drzwiowych, pojawiają się elementy z płyt włókno-cementowych. Bryła budynku wyraźnie dzieli się na dwie części o prostej formie, każda kryta dachem dwuspadowym o kącie nachylenia 40° (83,9%). Części zostały połączone łącznikiem, który wyznacza funkcjonalny podział budynku. W lewej bryle znajduje się część dzienna: salon z jadalnią oraz kuchnia. Które przeszklone zostały tak, by naturalne światło mogło przenikać do pomieszczenia przez cały dzień. Natomiast w bryle prawe znajduje się część nocna z garażem dwustanowiskowym. Cały budynek został zaprojektowany w nowoczesnym charakterze, który wpisze się w niejedno otoczenie.
Galeria







Udostępnij:
Produkty pasujące


593 Leonora
Autorzy

Nanostudio
www.nanostudio.pl/Lokalizacja architekta
wielkopolskie
Jeżeli spodobał ci się ten projekt i chcesz nawiązać kontakt z jego twórcą, wypełnij formularz.