DzC 0277
Dom w Starej Rzece
Opis projektu
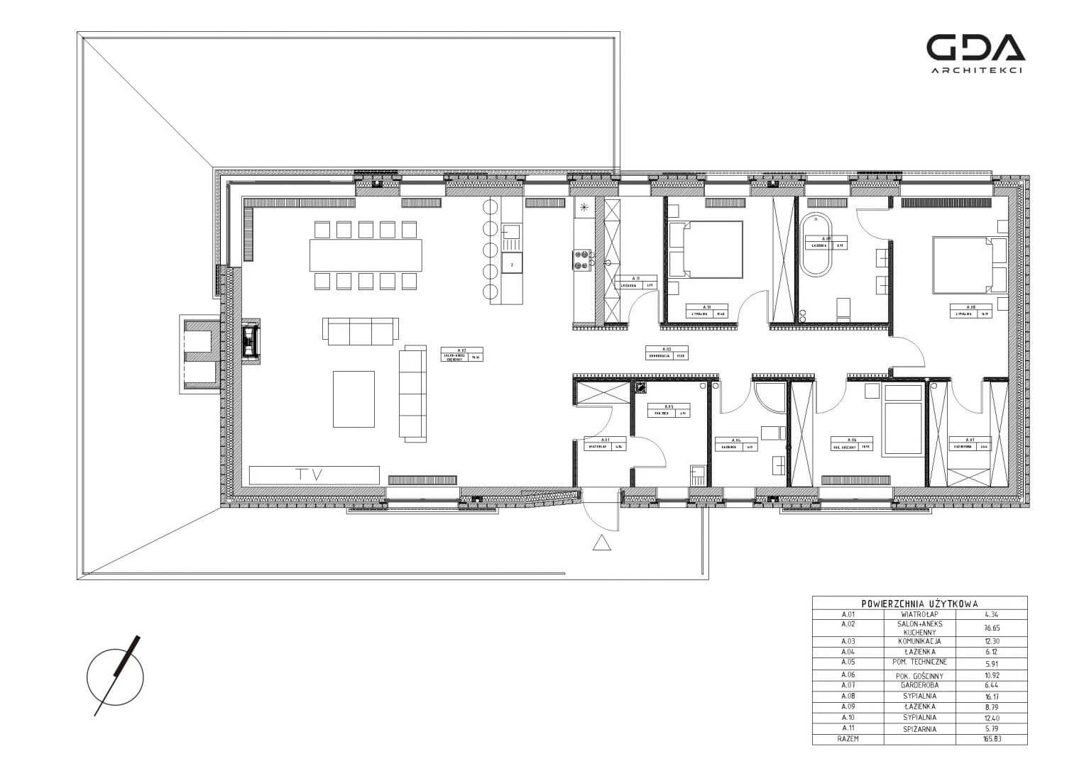
Przedmiotem inwestycji jest dom wakacyjny z garażem wolno stojącym zlokalizowany we wsi Stara Rzeka, gm. Osie. Przedmiotowa działka o pow. 3700m2 posiada kształt trójkąta, charakteryzuje się niepowtarzalnym widokiem na rzekę oraz dużym spadkiem w kierunku północno-zachodnim.
Projektowany budynek usytuowany jest elewacją frontową do najdłuższego boku działki, a jego forma oraz materiały nawiązują do tradycyjnej architektury regionu (Bory Tucholskie). Trójwarstwową elewację zaprojektowano z cegły pełnej w naturalnym odcieniu. Zastosowano również okiennice ze sterowaniem automatycznym chroniące przed przegrzaniem budynku w lecie oraz zapewniające bezpieczeństwo poza sezonem. Z części dziennej, w której mieści się przestronny salon z kuchnią i jadalnią rozpościera się widok na dolinę. W bezpośrednim sąsiedztwie kuchni zlokalizowano spiżarnię oraz łazienkę z kotłownią. W części prywatnej znajdują się sypialnie oraz pokój kąpielowy, z którego można nie tylko podziwiać widok, ale po otwarciu okien również słuchać płynącej w oddali rzeki.
Galeria




Udostępnij:
Inne projekty tego architekta
Produkty pasujące


74 Sao Paulo
Autorzy

GDA Architekci
www.gda-architekci.plLokalizacja architekta
pomorskie
Jeżeli spodobał ci się ten projekt i chcesz nawiązać kontakt z jego twórcą, wypełnij formularz.