DzC 0361
Dom dla W
Opis projektu
Tematem projektu była przebudowa skrajnego segmentu domu szeregowego z lat siedemdziesiątych. Jego nowi właściciele spotkali się z typowymi problemami dla budynków z tego okresu. Słabej jakości materiałami budowlanymi, wyniesionym parterem i niepraktycznym układem ścian wewnętrznych. Efektem był dom zamknięty na świat zewnętrzny z niewygodnymi, odseparowanymi od siebie i słabo doświetlonymi pomieszczeniami. Niewielka dobudowana do niego część mieściła garaż, salon, a nad nim taras. Cała działka ze skrajnym segmentem była malutka i wyeksponowana ze wszystkich stron – dom właściwie nie posiadał ogródka.
Naszym zadaniem było stworzenie nowego układu funkcjonalnego wewnątrz, oraz całkowita przebudowa dobudówki w jej istniejącym obrysie. Punktem wyjścia był kontekst lokalizacji – reprezentacyjna część Warszawy zaplanowana jako „Miasto-Ogród” z dużą ilością zieleni i przestrzeni rekreacyjnych.
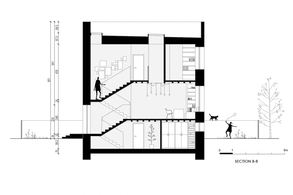
Ideą w nowo-projektowanym przez nas obiekcie było stworzenie ram, które posłużyłyby jako oparcie dla roślin. Chcieliśmy powiększyć istniejący ogród, którego częścią i kontynuacją miały być zarówno ściany jak i taras budynku. Dzięki temu zapewniliśmy właścicielom przestrzeń rekreacyjną na zewnątrz. Poprawiliśmy też komunikację i stworzyliśmy zewnętrzną stalową klatkę schodową, która daje bezpośredni dostęp z salonu na taras, który jest na pierwszym piętrze. Ściany z cegły osłaniają go przed wzrokiem przechodniów. Przez znajdujące się w nich otwory i ażurowe fragmenty przenika słońce.
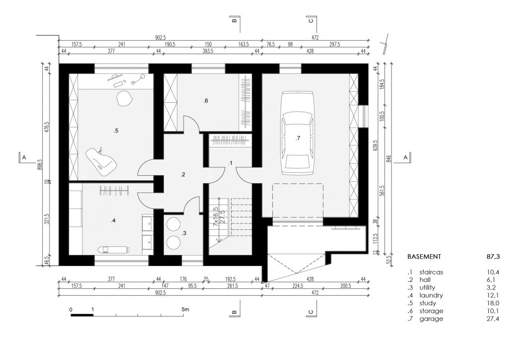
Wnętrze dostosowane zostało do potrzeb współczesnej, czteroosobowej rodziny – na parterze powstała otwarta strefa dzienna o powierzchni 70 metrów kwadratowych, piętro mieści trzy wygodne sypialnie, a piwnica funkcje uzupełniające. Świetliki umieszczone w płaskim dachu, dzięki otworom przebitym w stropach, doświetlają również niższe kondygnacje.
Przebudowa domu jednorodzinnego w zabudowie szeregowej otrzymała następujące nagrody: 1 nagroda w konkursie BrickAward 2019 w kategorii “Feeling at home” , nominacja w kategorii domów jednorodzinnych przez portal Archdaily do międzynarodowej nagrody “Building of the year 19”, w którym nominowanych zostało 8 pracowni z Polski oraz nominacja do Nagrody Architektonicznej Prezydenta Warszawy w kategorii Architektura Mieszkaniowa.
Zespół: Marta Frejda, Michał Gratkowski, Waldemar Nowicki, Klaudia Zyza
Zdjęcia: Maciej Jeżyk / ONI
Powierzchnia: 228,0 m²
Galeria
Udostępnij:
Produkty pasujące
125 Perla
Autorzy
MFRMGR Architekci
mfrmgr.pl/Lokalizacja architekta
mazowieckie
Jeżeli spodobał ci się ten projekt i chcesz nawiązać kontakt z jego twórcą, wypełnij formularz.