DzC 0588
Dom w Mikołowie
Opis projektu
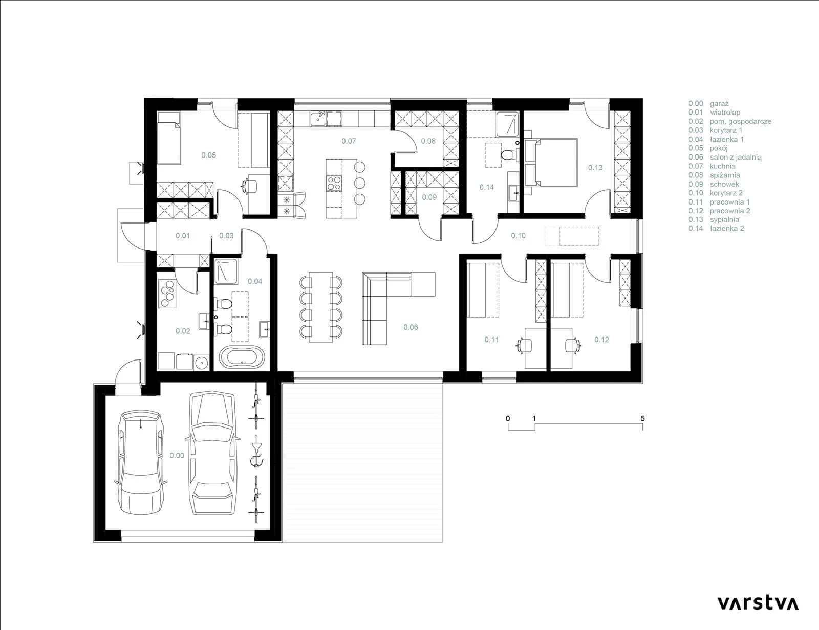
Dom w Mikołowie to parterowa stodoła, a w zasadzie dwie stodoły, bo tuż obok przyklejona jest druga mniejsza, która pełni funkcję garażu. Inwestorom bardzo zależało, żeby cały program funkcjonalny domu znalazł się na parterze. Drugą podstawową wytyczną była zwarta i prosta bryła, co zdecydowanie udało się uzyskać (garaż stanowi niezależne pomieszczenie). Głównym wyzwaniem projektu były drzewa istniejące, które miały zostać zachowane w jak największej ilości, przy jednoczesnym optymalnym zlokalizowaniu domu na działce i zachowaniu osi widokowych na zieleń.
Dom ma bardzo prosty i klarowny układ funkcjonalny – strefa wejściowa wraz z pokojem córki, dalej otwarta strefa dzienna, która ma podwyższony sufit, a za nią prywatna część Inwestorów wraz z pracowniami i sypialnią. Z salonu na ogród wychodzić będą duże przeszklenia, które zapewnią Inwestorom piękny widok na taras i ich sad.
Elewacja domu wykończona zostanie częściowo tynkiem w kolorze białym oraz klinkierem z naturalnej ciętej cegły. Dach pokryty będzie dachówką w kolorze grafitowym.
Budynek miał być jak najbardziej energooszczędny, dlatego nie ma w nim żadnych wnęk ani wypustów. Prócz tego izolację termiczną zastosowano w stropie nad parterem a nie jak to tradycyjnie ma miejsce – przy więźbie dachowej. Taki zabieg pozwala zminimalizować ilość energii potrzebnej do ogrzania domu. W projekcie zastosowano także rekuperację, pompę ciepła oraz fotowoltaikę.
projekt_budowlany: 2022 r.
architektura: Anna Jabłońska
konstrukcja: Błażej Kasztura
instalacje: Sanprojekt Spółka z o.o
wizualizacje: Piodec
Galeria
Udostępnij:
Produkty pasujące
Moorbrand żółta piaskowa cieniowana
Autorzy
varstva ANNA JABŁOŃSKA
www.varstva.pl/Lokalizacja architekta
śląskie
Jeżeli spodobał ci się ten projekt i chcesz nawiązać kontakt z jego twórcą, wypełnij formularz.