DzC 0617
Slim House
Opis projektu
Budowa własnego domu jest spełnieniem marzeń wielu ludzi. Zakup działki “pod miastem” może się wydawać bardzo atrakcyjną opcją - tańsze grunty, większy metraż, spokojna okolica, bliżej natury. Ten bardzo popularny model życia wpływa jednak na coraz większe rozlewanie się miast (eng. urban sprawl), a nasze “bliżej natury” kończy się na godzinach spędzonych w aucie w korkach. Niektórym to nie przeszkadza, ale w czasach kiedy najcenniejszą walutą jest czas może warto pomyśleć o alternatywach? Jedną z nich może być znalezienie luki i wcale nie chodzi o lukę w prawie, a w istniejącej zabudowie. Wąskie, problematyczne działki można znaleźć w bardzo atrakcyjnych lokalizacjach w wielu Polskich miastach. Wymagają jednak sporo odwagi od inwestora, szczególnej kreatywności projektantów i niezwykłej precyzji wykonawcy.
Slim house jest uzupełnieniem zabudowy szeregowej na osiedlu domów jednorodzinnych na Wingoradach w Poznaniu. Inwestorzy dostrzegli potencjał w bardzo wąskiej działce i postanowili, że właśnie tutaj powstanie ich wymarzony dom. Dom dla młodej i aktywnej pary, która przyszła do nas z bardzo konkretnym i sprecyzowanym programem funkcjonalnym. Potraktowaliśmy to jako wyjątkowe wyzwanie. Wąska na 5,7 m luka w istniejącej pierzei dała nam szerokie pole do popisu.
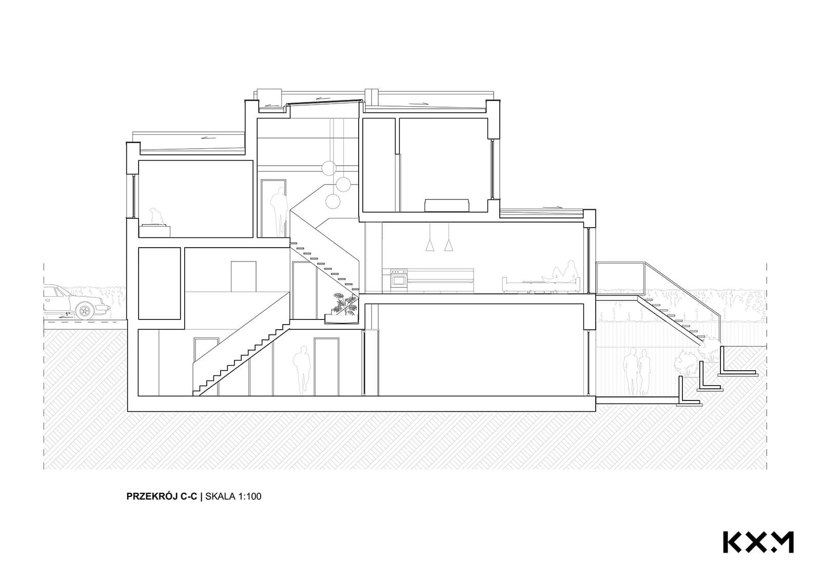
Dom zaprojektowany na planie prostokąta, ma dwie kondygnacje nadziemne i jedną podziemną. Elewacje frontowa i tylna (od strony ogrodu) swoimi wysokościami nawiązują do elewacji sąsiednich, natomiast środkowa część bryły to miejscowe przewyższenie.
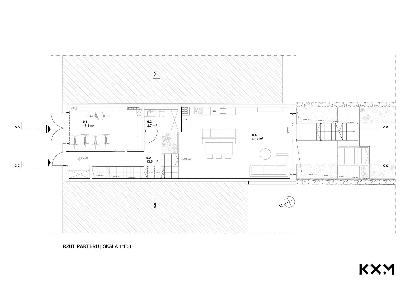
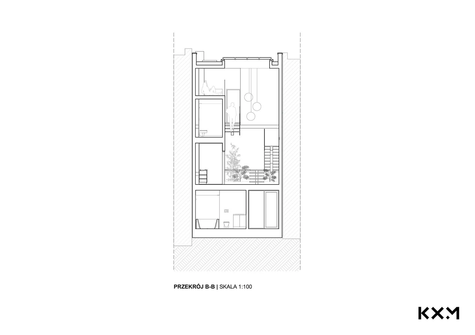
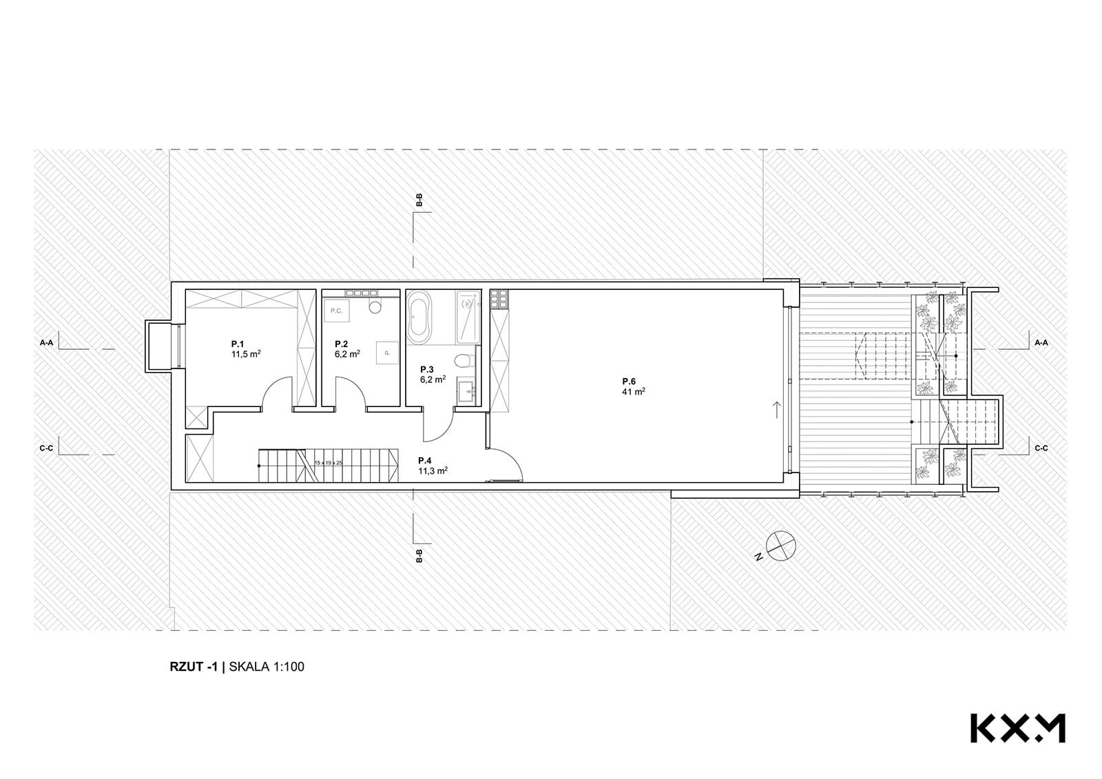
Podział na strefy funkcjonalne opiera się na koncepcji zapewnienia jak największej ilości naturalnego światła. Ze względu na niewielką szerokość rzutu w stosunku do jego głębokości, sypialnie, salon z aneksem kuchennym oraz salę do ćwiczeń umieszczono bezpośrednio przy elewacjach. Trzon sanitarny wraz z pomieszczeniem technicznym oraz strefą komunikacji pionowej znajduje się mniej więcej w połowie głębokości rzutu. Nad otwartą klatką schodową zaprojektowano świetlik dachowy, który stanowi trzecie, oprócz okien na elewacjach, źródło światła słonecznego. Przestrzeń ta stanowi serce budynku, łącząc ze sobą wszystkie funkcje.
W budynku zaprojektowano system półpoziomów. Umożliwia to lepsze dostosowanie programu funkcjonalnego do wymogów wysokościowych wynikających z Warunków Zabudowy. Umieszczenie salonu z kuchnią oraz sypialni w połowie wysokości kondygnacji pozwoliło na zwiększenie wysokości salki do ćwiczeń. W ten sposób jednocześnie zoptymalizowano głębokość posadowienia budynku. Ponadto, umożliwiło to lepsze doświetlenie kondygnacji podziemnej oraz zapewniło dostęp do ogrodu poprzez taras zewnętrzny.
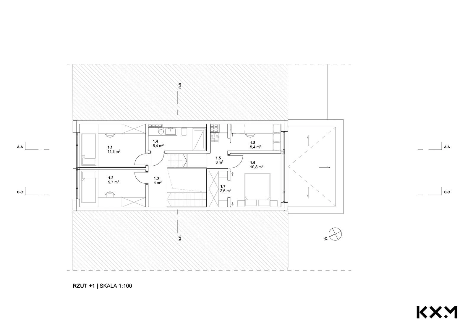
Obiekt posiada czytelny podział funkcjonalny, zgodnie z zasadą ‘im wyżej tym bardziej prywatne strefy’. Na parterze znajduję się strefa wejściowa: hall, garaż pełniący funkcję warsztatu rowerowego i toaleta. Pół poziomu wyżej zlokalizowano otwartą na ogród strefę dzienną: salon z kuchnią. Na pierwszym piętrze przewidziano strefę dzieci: dwie sypialnie i wspólną łazienkę. Pół poziomu wyżej zaś zaprojektowano strefę rodziców: sypialnię ‘master’ z garderobą oraz niewielki gabinet. Na samej górze w pasie komunikacyjnym pomiędzy strefą rodziców a dzieci znajduje się niewielka czytelnia na antresoli. Na kondygnacji podziemnej zaprojektowano strefę rekreacji: przestronna sala do ćwiczeń z wyjściem do ogrodu. Ponadto znajdują się tu pomieszczenia pomocnicze takie jak łazienka, pomieszczenie techniczno-gospodarcze oraz pomieszczenie magazynowe. Kondygnacja ta ma również dostęp do ogrodu.
Proporcje działki wymusiły nietypowe zagospodarowanie terenu. Zaprojektowany “liniowy” układ ogrodu opiera się na ścieżce wzdłuż której zlokalizowane są poszczególne strefy. Bezpośrednio przy domu znajdują się dwa tarasy: dolny stanowiący przedłużenie siłowni oraz górny z miejscem na stół. W dalszej części działki przewidziano miejsce na bujną roślinność i prostokreślne oczko wodne. Na samym końcu działki, wśród zieleni znajduje się miejsce do wypoczynku, skąd rozpościera się doskonała perspektywa na dom. Panuje tutaj cisza, która pozwala zapomnieć, że jesteśmy niemal w centrum miasta.
lokalizacja:
Winogrady, Poznań
zespół projektowy:
Michał Hondo, Klaudia Gołaszewska, Marek Grodzicki, Kinga Grzybowska
Galeria
Udostępnij:
Inne projekty tego architekta
Produkty użyte
LF05 Black Heart
Autorzy
KXM
kxmgroup.pl/Lokalizacja architekta
wielkopolskie
Jeżeli spodobał ci się ten projekt i chcesz nawiązać kontakt z jego twórcą, wypełnij formularz.