DzC 0646
Dom Śląski
Opis projektu
Przewidywana lokalizacja obiektu jakim jest dom jednorodzinny to powiaty: bieruńsko- lędziński, gliwicki, lubliniecki, mikołowski, pszczyński, raciborski, rybnicki, tarnogórski oraz wodzisławski, znajdujące się w województwie śląskim. Nie jest to lokalizacja przypadkowa. Na terenach śląskich wsi wykształciła się forma zabudowy jaką jest zagroda. Była to bezpośrednia odpowiedź na potrzeby rodzące się przy prowadzeniu gospodarstwa rolnego. W zależności od kształtu i rozmiarów parceli zabudowania były rozmieszczane na niej w różny sposób. Zawsze jednak ułożenie to było wynikiem indywidualnych potrzeb.
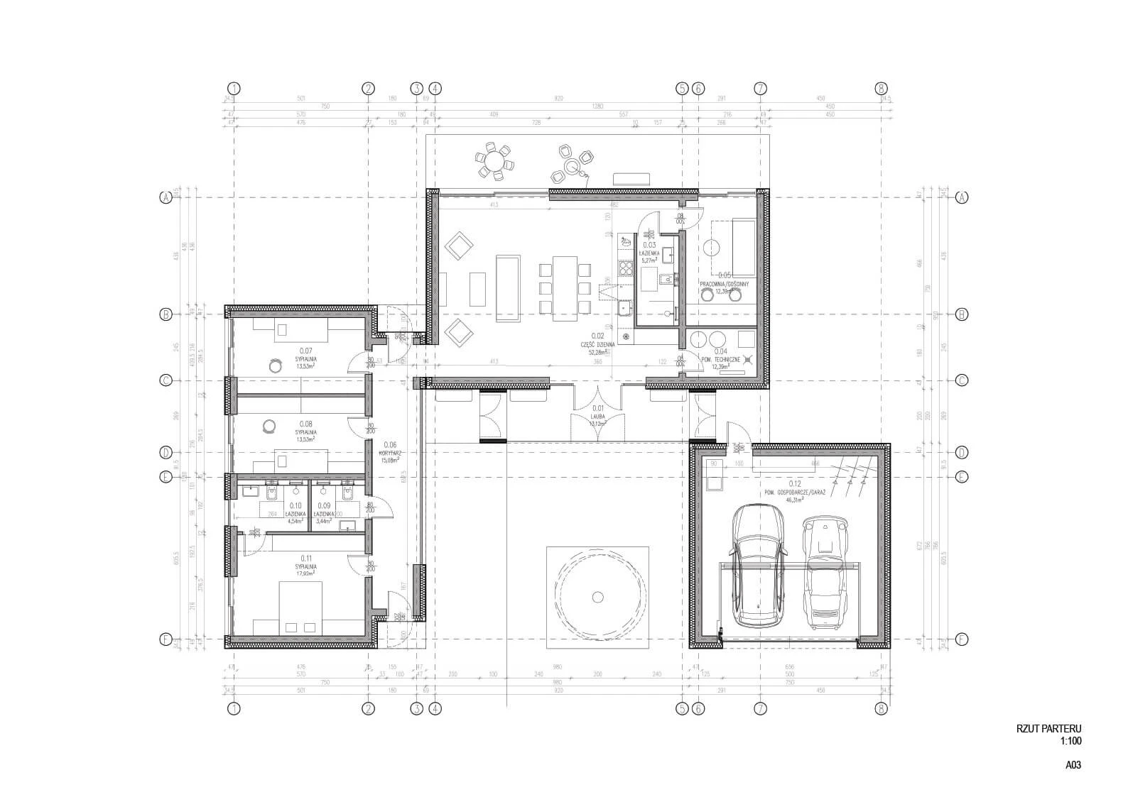
W podobny sposób projektujemy wolno stojący dom jednorodzinny, który składa się z trzech brył. Każda z brył jest swoistym modułem, który można ustawić w dowolnej konfiguracji względem pozostałych. Każdy budynek ma swoją funkcję - pierwszy mieści część dzienną, kuchnię i strefę pracy. W drugim, bardziej prywatnym znajdują się sypialnie domowników. Trzecia bryła to budynek gospodarczy, w którym mieści się garaż. Dzięki tym cechom projekt jest elastyczny i pozwala stworzyć wyjątkową przestrzeń na dowolnie wybranej działce.
Forma budynków nawiązuje do architektury środkowej części województwa śląskiego. W powiatach, w których przewidziana jest lokalizacja projektowanego obiektu, znaleźć można wiele przykładów murowanych z cegły, nieotynkowanych domów na rzucie prostokąta. Ten rodzaj budownictwa wyróżnia się na tle innych powiatów województwa śląskiego, gdyż przeważająca część domów śląskich to domy o konstrukcji drewnianej.
Elementem projektu nawiązującym funkcjonalnie do tradycji budowlanej tego obszaru jest również tzw. lauba. Pierwotnie była to specyficzna odmiana dostawionego do bryły budynku ganku o konstrukcji drewnianej. Dla mieszkańców nie była ona jedynie przechodnią strefą przed wejściem do domu, ale również spędzali oni tam chętnie czas wolny. Projektowana lauba w bardziej nowoczesnej formie szanuje tradycje budownictwa obszaru centralnego Śląska.
Konstrukcja projektowanego domu również jest murowana i ocieplona styropianem. Elewacja wykończona jest płytką z lica cegły rozbiórkowej, dzięki czemu budowa domu staje się bardziej ekologiczna. Osłona „lauby” i bok korytarza wykończone są deskami elewacyjnymi. Dach pokryty jest czerwoną, ceramiczną dachówką karpiówką. Stolarka projektowana jest jako drewniana.
Głównym założeniem projektu jest nawiązanie do tradycji budowy zagród na terenach wiejskich Śląska. Pojedyncza, jednolita bryła domu mieszkalnego zastąpiona została trzema budynkami o różnych funkcjach.
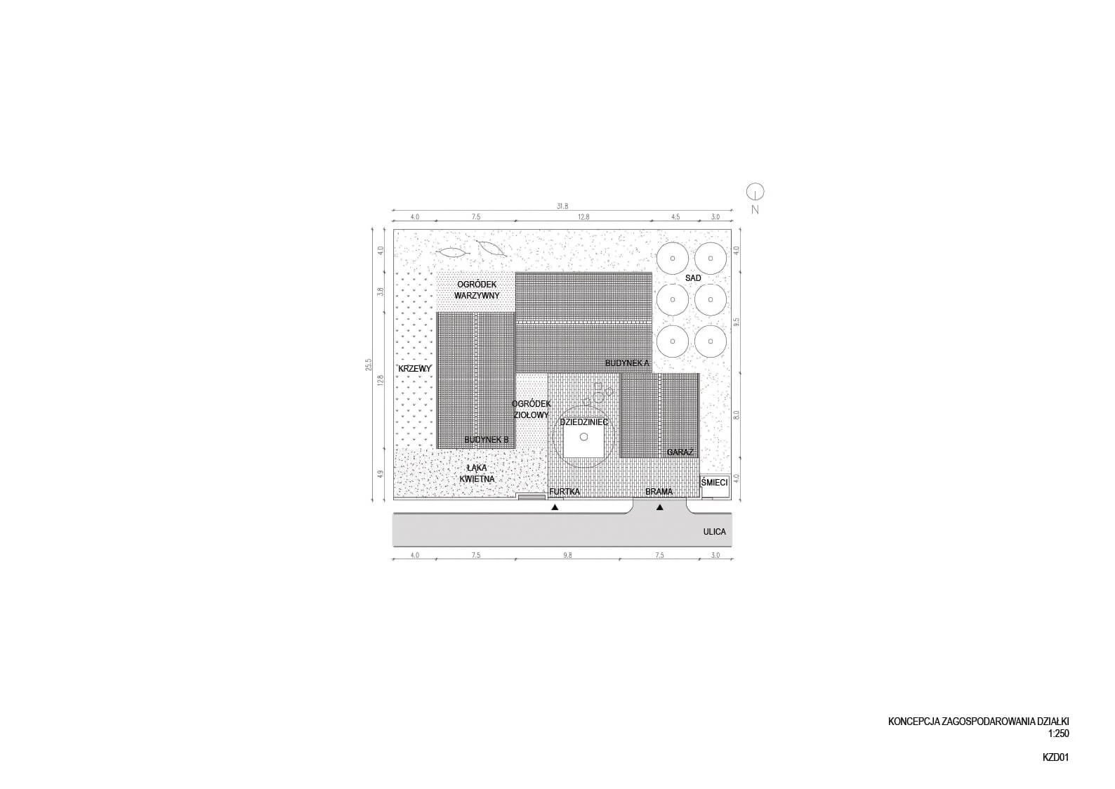
Zmieniając wzajemne położenie brył można utworzyć intymne, przyjemne wnętrza. Nawiązuje to do wewnętrznych podwórek, które w naturalny sposób pojawiały się w zabudowach zagrodowych.
Skutkiem elastyczności projektu jest możliwość jak najbardziej optymalnego dopasowania układu budynków do wybranej działki. Rozwiązanie dobiera się w zależności od wymiarów działki, a także biorąc pod uwagę jej zorientowanie względem stron świata.
Strefa wejściowa do domu nawiązuje do lauby, czyli charakterystycznego dla centralnych terenów Śląska drewnianego ganku dostawionego do bryły budynku.
Galeria







Udostępnij:
Produkty pasujące


Wiesmoor jasnoczerwona cieniowana
Autorzy

Jastaa
jastaa.pl/Lokalizacja architekta
dolnośląskie
Jeżeli spodobał ci się ten projekt i chcesz nawiązać kontakt z jego twórcą, wypełnij formularz.