DzC 0670
Dom w Gdańsku
Opis projektu
Budynek zaprojektowano jako parterowy z użytkowym poddaszem. Nad pokojem dziennym otworzyliśmy strop, powiększając przestrzeń. Wraz z otwarciem na taras zlokalizowany od południowej strony budynku, dało to dużo oddechu i światła.
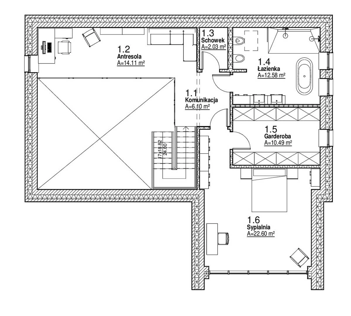
Poza salonem i kuchnią na parterze znajduje się przestronny gabinet oraz pokój gościnny. Na piętrze zaplanowano główną sypialnię razem z garderobą oraz łazienką z wolnostojącą wanną - oba pomieszczenia z pięknym widokiem na ogród.
Elewacje domu wykończono cegłą nawiązującą do lokalnej tradycji oraz blachą w kolorze ciemnoszarym. Południowe elewacje budynku posiadają duże przeszklenia, które czynią bryłę atrakcyjniejszą, a użytkownikom domu pozwalają na lepszy kontakt z otoczeniem i dobre doświetlenie.
Galeria











Udostępnij:
Inne projekty tego architekta
Produkty użyte


Moorbrand lehm cieniowana
Autorzy

AMIRI architekci Oskar Amiri
amiriarchitekci.pl/Lokalizacja architekta
mazowieckie
Jeżeli spodobał ci się ten projekt i chcesz nawiązać kontakt z jego twórcą, wypełnij formularz.