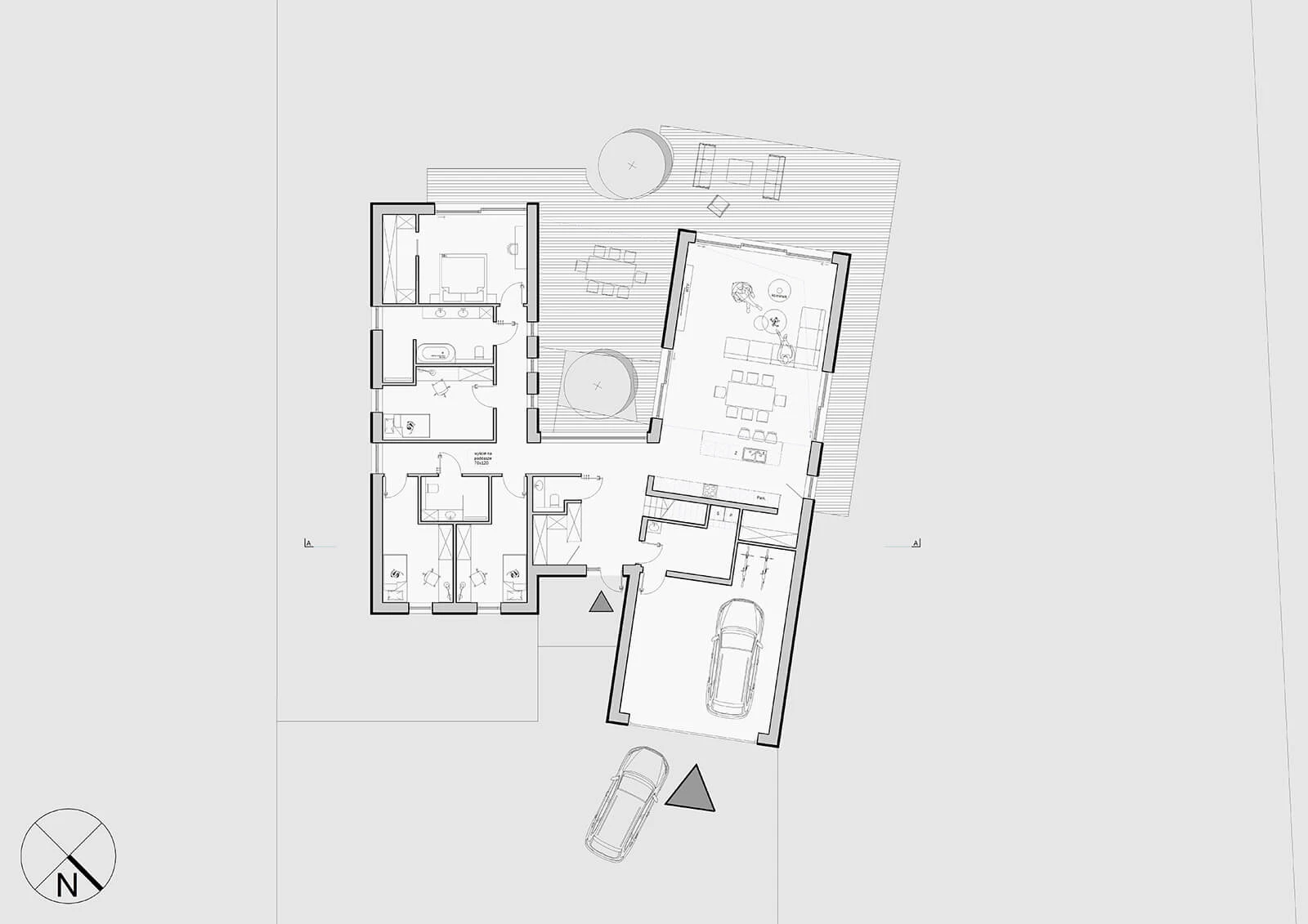
DzC 0763
Nowoczesna stodoła
Galeria
Udostępnij:
Inne projekty tego architekta
Produkty pasujące
504 Freya WS
Autorzy
Orywał Architektura
www.orywal.plLokalizacja architekta
wielkopolskie
Jeżeli spodobał ci się ten projekt i chcesz nawiązać kontakt z jego twórcą, wypełnij formularz.