DzC 0385
Dom ażurowy
Opis projektu
Głównym wymaganiem a właściwie pragnieniem Inwestora, było stworzenie domu, w którym odczuwa się i pamięta rodzinne korzenie. Po kilkuletnim mieszkaniu w stolicy projekt ten miał być ucieczką na wieś. Krajobraz ziem świętokrzyskich dosłownie maluje się kolorowymi glebami. Postanowiliśmy więc sięgnąć do tradycji przemysłowych Kielc, przetwórstwa surowców mineralnych z występujących tu bogatych złóż. Cegła i stal — jako materiały zawarte w projekcie wydały się oczywistym wyborem. Przy współpracy z lokalną cegielnią, wykorzystaliśmy cegłę ręcznie formowaną. Tradycyjnemu materiałowi nadaliśmy współczesny charakter, formując elewacje ażurowo. Nie jest to wyłącznie zabieg estetyczny — częściowo za tą „osłoną” kryją się przeszklenia np. ciągów komunikacyjnych lub charakterystycznych wnęk, które wykraczają poza głównym obrys ścian, a które dają dodatkową, intymną przestrzeń np. strefę prysznica zewnętrznego. Tak kształtowana fasada, wprowadza do wnętrza domu urzekającą grę światła i cieni.
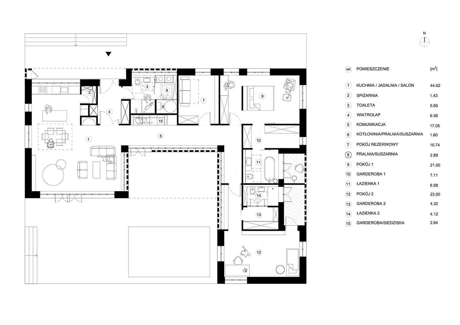
Dom na planie przypominającym literę „C”, posiada trzy główne segmenty:
1. Strefa dzienna, zlokalizowana jest w zachodnim skrzydle. Zależało nam szczególnie na połączeniu widokowym osi północno — południowej, ponieważ tereny położone na północ, mają pozostać niezabudowane, dając tym samym panoramiczne otwarcia.
2. Środkowy korpus to pomieszczenia techniczne i dodatkowe.
3. Skrzydło wschodnie to przestrzeń prywatna, skupiająca pokoje mieszkalne, garderoby i łazienki.
Całość otwiera się na dziedziniec od strony południowej.
Przy projektowaniu zwracaliśmy uwagę na czynnik środowiskowy.
Po konsultacjach z Inwestorem ustaliliśmy, że nie ma on chęci do tego, aby budynek korzystał z alternatywnych systemów oszczędzania energii. Nie przewidywaliśmy montażu baterii fotowoltaicznych, kolektorów słonecznych czy nowoczesnych systemów ogrzewania jak pompy ciepła. Jesteśmy jednak wrażliwi na środowisko naturalne i mimo wszystko zdecydowaliśmy się na obniżenie energii pierwotnej obiektu — nie w znaczeniu wskaźnikowym a dosłownym.
Chcieliśmy znaleźć materiały budowlane, których energia pierwotna jest niewielka i z nich stworzyć bryłę budynku. Oczywistym jest fakt, że proces produkcyjny materiałów budowlanych zawsze niesie za sobą wydatki energii, jednak im energia pierwotna materiału na placu budowy jest mniejsza, tym bardziej chronimy środowisko naturalne. Świadomość ta skłoniła nas do poszukiwań materiałów lokalnych, czyli wytwarzanych w niewielkiej odległości od budowy.
Nie twierdzimy, że nasz projekt jest energooszczędny, nie jest też ekologiczny. Nie miał taki być. Był jednak projektowany ze świadomością ekologiczną. Gdy inwestor poprosił nas o duże przeszklenie i basen, wiedzieliśmy już, w jaki sposób te elementy łączyć ze sobą, aby obniżać energię końcową.
Inwestor: prywatny
Lokalizacja: Pionki ( woj. Mazowieckie)
Powierzchnia użytkowa: 159,2 m2
Skład zespołu autorskiego: Anna Korzeniowska, Michał Ciuła
Wizualizacje i opracowanie graficzne: mjuut
Galeria
Udostępnij:
Produkty pasujące
56 Victoria czerwona
Autorzy
mjuut
korzeniowskaanka.wixsite.com/websitemjuutLokalizacja architekta
małopolskie
Jeżeli spodobał ci się ten projekt i chcesz nawiązać kontakt z jego twórcą, wypełnij formularz.